Zpět na výpis článkůDen otevřených dveří 19.11.2022 - Vrchlabí
V sobotu 19. listopadu vás zveme na další den otevřených dveří. Tentokrát se můžete přijít podívat na bungalov Instinkt 2-129 do Vrchlabí.
Zpět na výpis článkůV sobotu 19. listopadu vás zveme na další den otevřených dveří. Tentokrát se můžete přijít podívat na bungalov Instinkt 2-129 do Vrchlabí.
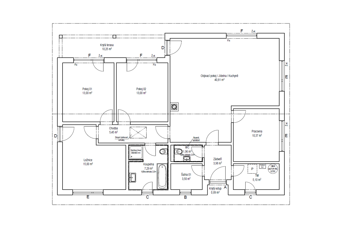
Na úpatí Krkonoš, ve Vrchlabí právě dokončujeme bungalov, který vychází z typového projektu Instinkt 2-129. Kvůli velikosti pozemku jsme ale museli dům zúžit a kvůli místnímu regulativu jsme zvětšili úhel střechy. Na přání klientů jsme upravovali i vnitřní uspořádání, aby přesně odpovídalo jejich požadavkům a potřebám.
Rodinný dům Instinkt 2-129 je větším sourozencem našeho nejoblíbenějšího domu Instinkt 1-108. Číslo 129 v názvu značí sice velikost užitné plochy, ten ve Vrchlabí má užitnou plochu o něco menší a to 119 m2. Přesto se na ní v promyšleném dispozičním uspořádání nachází obývací pokoj s kuchyňským koutem, 3 ložnice, pracovna, šatna, koupelna, samostatné WC a nezbytná technická místnost.
Přestože má dům velmi moderní design, jeho sedlová střecha a celkový vzhled vyhoví většině požadavků na venkovský styl bydlení a není problém ani s umístěním v chráněných oblastech. Navíc díky zvětšenému úhlu střechy vzniká pod krovem více prostoru. Pochozí půdu tak klienti využijí pro uskladnění sezonních věcí.
Všechna okna bungalovu zakrývají elektricky ovládané předokenní žaluzie, které mají mnoho výhod. Nejen, že regulují světlo a venkovní ruch, ale také díky nim budou mít klienti ideální kontrolu nad teplotami v jednotlivých místnostech a ušetří tak výdaje za energie - v parném létě se postarají o příjemné klima, v zimě zase zabrání úniku tepla.
O vytápění se postará tepelné čerpadlo napojené na teplovodní podlahové topení a přitápět bude možné i krbovými kamny, připojenými do zabudovaného komína.
ZIMNÍ AKČNÍ NABÍDKA
Až do konce ledna nabízíme vybrané typové domy v zimní akční nabídce se slevou až 1 656 000 Kč! Podívejte se, který bude vyhovovat právě vám. Všechny najdete ZDE.
Náš odborník se bude těšit na vaši návštěvu v sobotu 19. listopadu mezi 10 a 14 hodinou. Čas prohlídky není nutné předem rezervovat, ale pokud chcete mít jistotu, že budeme mít čas věnovat se pouze vám, je lepší předem kontaktovat přímo obchodního zástupce pana Jana Waloszka, telefonicky na čísle: +420 602 247 599 nebo e-mailem: Jan.Waloszek@Haas-Fertigbau.cz
Těšíme se na vaši návštěvu!
Adresa: Jana Opletala (nedaleko č.p.: 24), Vrchlabí – Podhůří (zobrazit na mapě)
GPS: 50.5918144N, 15.6169214E
|
Kontaktujte obchodního zástupce: |
|
Typové provedení bungalovu Instinkt 2-129 si prohlédněte ZDE. |

Od 1. srpna 2025 přichází v České republice zásadní změna: díky novele Z1 k požární normě ČSN 73 0802 bude možné projektovat a realizovat vícepatrové dřevostavby s výškou až 22,5 metru.
Pasivní dům na klíč od Haas Fertigbau je správnou volbou pro každého, kdo chce spojit úsporu, ekologii a pohodlný životní styl a navíc hledá zkušeného partnera, který se o vše postará od A do Z.
Toužíte po vlastním bydlení a hledáte pozemek na prodej v Chomutově? Nabízíme stavební pozemek s projektem domu Haas a vyřízeným stavebním povolením!