Pomáháme svým klientům navrhnout vysněný domov do všech detailů, díky nimž si v něm užijí každý den.

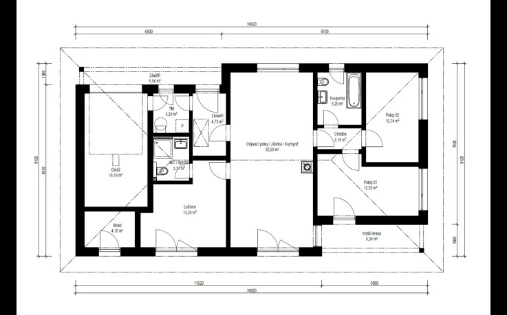
Bungalov Instinkt 1-108 nabízí na zastavěné ploše necelých 150 m2 kromě čtyř pokojů a kuchyňského koutu také prostor pro koupelnu, technickou místnost a sklad. Srdcem bungalovu je obývací pokoj s kuchyňským koutem a jídelnou, s pohodlným přístupem přímo na terasu. Součástí domu je navíc garáž.
| tepelná ztráta domu* | spotřeba energie pro vytápění | náklady na vytápění* - tepelné čerpadlo (standard) |
| 3.818 W | 9,2 MWh/rok | 8.823 Kč/rok |
Kompletně pro vás vyřídíme ZVÝHODNĚNÉ financování nového domu.