Pomáháme svým klientům navrhnout vysněný domov do všech detailů, díky nimž si v něm užijí každý den.

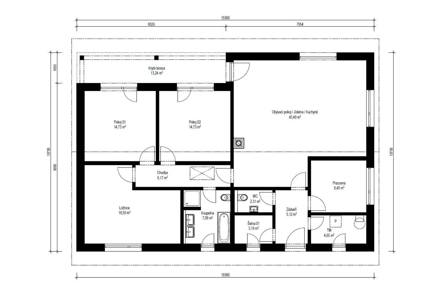
Úctyhodných 129 m2 bungalovu Instinkt 2-129 je užitná plocha, která bude vyhovovat i těm nejnáročnějším uživatelům. Francouzská okna nabízejí možnost vyjít z obývacího a obou menších pokojů rovnou na krytou terasu. Půdorys je přizpůsobený současnému stylu života. Kromě dvou menších pokojů jistě oceníte prostorný obývací pokoj s kuchyní a jídelnou, stejně jako dostatečně velkou ložnici a jako bonus pracovnu.
| tepelná ztráta domu* | spotřeba energie pro vytápění | náklady na vytápění* - tepelné čerpadlo (standard) |
| 4.914 W | 11,8 MWh/rok | 11.316 Kč/rok |
* Podmínky pro výpočet tepelných ztrát a nákladů
Kompletně pro vás vyřídíme ZVÝHODNĚNÉ financování nového domu.