Zpět na výpis článkůDen otevřených dveří 19.11.2022 - Podbořany
V sobotu 19. listopadu bychom vás rádi pozvali na prohlídku našeho referenčního domu do Podbořan na Lounsku, který jsme postavili už před třemi lety.
Zpět na výpis článkůV sobotu 19. listopadu bychom vás rádi pozvali na prohlídku našeho referenčního domu do Podbořan na Lounsku, který jsme postavili už před třemi lety.
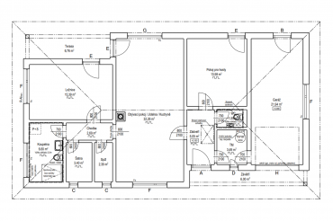
Ve variantní úpravě typového projektu bungalovu Instinkt 1-108 najdete na užitné ploše 108 m2, 3 pokoje, kuchyňský kout, šatnu, spižírnu, koupelnu s WC a samostatnou toaletu. Technická místnost je samozřejmostí každého domu Haas. Součástí toho v Podbořanech je i garáž.
Vytápění bungalovu je řešeno tepelným čerpadlem napojeným na podlahové topení, což je v současnosti v našich domech standardem.
Přijeďte si prohlédnout již zabydlený rodinný dům. Náš odborník bude připraven zodpovědět všechny Vaše dotazy o dřevostavbách Haas. Navíc si ale můžete promluvit s majiteli o tom, jak probíhala stavba nebo jak se jim v dřevostavbě bydlí. I proto je tentokrát NUTNÉ vaši prohlídku předem rezervovat. Vy aspoň budete mít jistotu, že budeme mít čas věnovat se pouze vám. Kontaktujte proto prosím našeho obchodního zástupce pana Petra Malce telefonicky na čísle: +420 603 261 340 nebo e-mailem: Petr.Malec2@Haas-Fertigbau.cz. Registrovat se můžete i přes kontaktní formulář níže na stránce a získat navíc odměnu!
ZIMNÍ AKČNÍ NABÍDKA
Až do konce ledna nabízíme vybrané typové domy v zimní akční nabídce se slevou až 1 656 000 Kč! Podívejte se, který bude vyhovovat právě vám. Všechny najdete ZDE.
Líbí se vám naše rodinné domy? Přijďte se za námi podívat a vyberte si ten svůj. Vybírat můžete z typových bungalovů nebo patrových domů, ale zrovna tak vám rádi postavíme individuální dům podle návrhu vašeho vlastního architekta. V každém případě se ale můžete spolehnout, že váš nový domov od Haas bude lepší. Díky použitým materiálům splňují konstrukce našich dřevostaveb parametry definované pro pasivní domy. A nejenže skvěle udržují tepelný komfort, jsou také bytelnější a lépe chrání před hlukem. Navíc jsou větší, světlejší i luxusnější. Přijďte se podívat a popovídat si s naším odborníkem o všem, co vás o domech Haas zajímá.
Těšíme se na vaši návštěvu!
Adresa: Adresa: Valovská 1168, Podbořany (zobrazit na mapě)
GPS: 50.2190847N, 13.4141711E
|
Kontaktujte obchodního zástupce: |
|
Typové provedení bungalovu Instinkt 1-108 si prohlédněte ZDE. |

Od 1. srpna 2025 přichází v České republice zásadní změna: díky novele Z1 k požární normě ČSN 73 0802 bude možné projektovat a realizovat vícepatrové dřevostavby s výškou až 22,5 metru.
Pasivní dům na klíč od Haas Fertigbau je správnou volbou pro každého, kdo chce spojit úsporu, ekologii a pohodlný životní styl a navíc hledá zkušeného partnera, který se o vše postará od A do Z.
Toužíte po vlastním bydlení a hledáte pozemek na prodej v Chomutově? Nabízíme stavební pozemek s projektem domu Haas a vyřízeným stavebním povolením!