Zpět na výpis článků

Den otevřených dveří 13.11.2021-Martinov

3. 11. 2021

Na sobotu 13. listopadu zařazujeme třetí Den otevřených dveří ve třetím bungalovu Instinkt 1-108. V Martinově u Brandýsa nad Labem si můžete prohlédnout dokončený vzorový dům s upravenou dispozicí.

Náš odborník bude připraven provést vás domem a zodpovědět veškeré dotazy týkající se stavby, dodacích termínů, financování nebo samotného bydlení v dřevostavbě mezi 9 a 15 hodinou

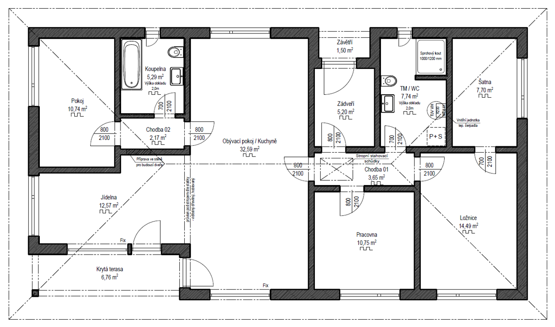
Oblíbený moderní bungalov Instinkt 1-108 v Martinově má upravenou dispozici 4 + KK a užitnou plochu 113 m2. Je vybaven kuchyňskou linkou a jednoduše zařízen nábytkem. Vzorový dům u Brandýsa je vybaven podlahovým vytápěním napojeným na tepelné čerpadlo, které je standardní součástí dodávky rodinného domu na klíč.

Postavíme pro vás lepší domov

Bungalov Instinkt 1-108 je samozřejmě i součástí nové generaci rodinných domů, které jsou v každém ohledu ještě lepší. Díky použitým materiálům splňují parametry pasivních domů. A nejenže skvěle udržují tepelný komfort, jsou také bytelnější a lépe chrání před hlukem. Navíc jsou větší, světlejší i luxusnější. Přijďte se podívat a popovídat si s našimi odborníky o všem, co vás o domech Haas zajímá.

Jak na prohlídku?

Vzhledem ke covidové situaci prosíme, abyste si v případě zájmu o prohlídku předem domluvili čas své návštěvy a my se mohli věnovat pouze vám. Kontaktuje prosím přímo obchodního zástupce pana Jakuba Krejzu telefonicky na čísle +420 603 260 592 nebo na e-mailu Jakub.Krejza@Haas-Fertigbau.cz
Rovněž si můžete domluvit individuální termín návštěvy na jiný den, pokud by vám termín nevyhovoval.

Těšíme se na vaši návštěvu!

 

Adresa: Martinov 429, Záryby-Martinov (zobrazit na mapě)
GPS: 50.2109183N, 14.6352964E

PŘEČTĚTE SI TAKÉ

Patrová dřevostavba: budoucnost komerčních staveb v Česku

Patrová dřevostavba: budoucnost komerčních staveb v Česku

Od 1. srpna 2025 přichází v České republice zásadní změna: díky novele Z1 k požární normě ČSN 73 0802 bude možné projektovat a realizovat vícepatrové dřevostavby s výškou až 22,5 metru.

Pasivní dům na klíč: komfort, který šetří energii i peníze

Pasivní dům na klíč: komfort, který šetří energii i peníze

Pasivní dům na klíč od Haas Fertigbau je správnou volbou pro každého, kdo chce spojit úsporu, ekologii a pohodlný životní styl a navíc hledá zkušeného partnera, který se o vše postará od A do Z.

Pozemek na prodej v Chomutově

Pozemek na prodej v Chomutově

Toužíte po vlastním bydlení a hledáte pozemek na prodej v Chomutově? Nabízíme stavební pozemek s projektem domu Haas a vyřízeným stavebním povolením!