Zpět na výpis článkůBungalov ve 3D virtuální prohlídce
Nahlédněte s námi do individuálního bungalovu prostřednictvím 3D virtuální prohlídky. Prohlédnout si můžete každý kout rodinného domu, aniž byste vstali doma z gauče.
Zpět na výpis článkůNahlédněte s námi do individuálního bungalovu prostřednictvím 3D virtuální prohlídky. Prohlédnout si můžete každý kout rodinného domu, aniž byste vstali doma z gauče.
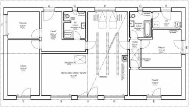
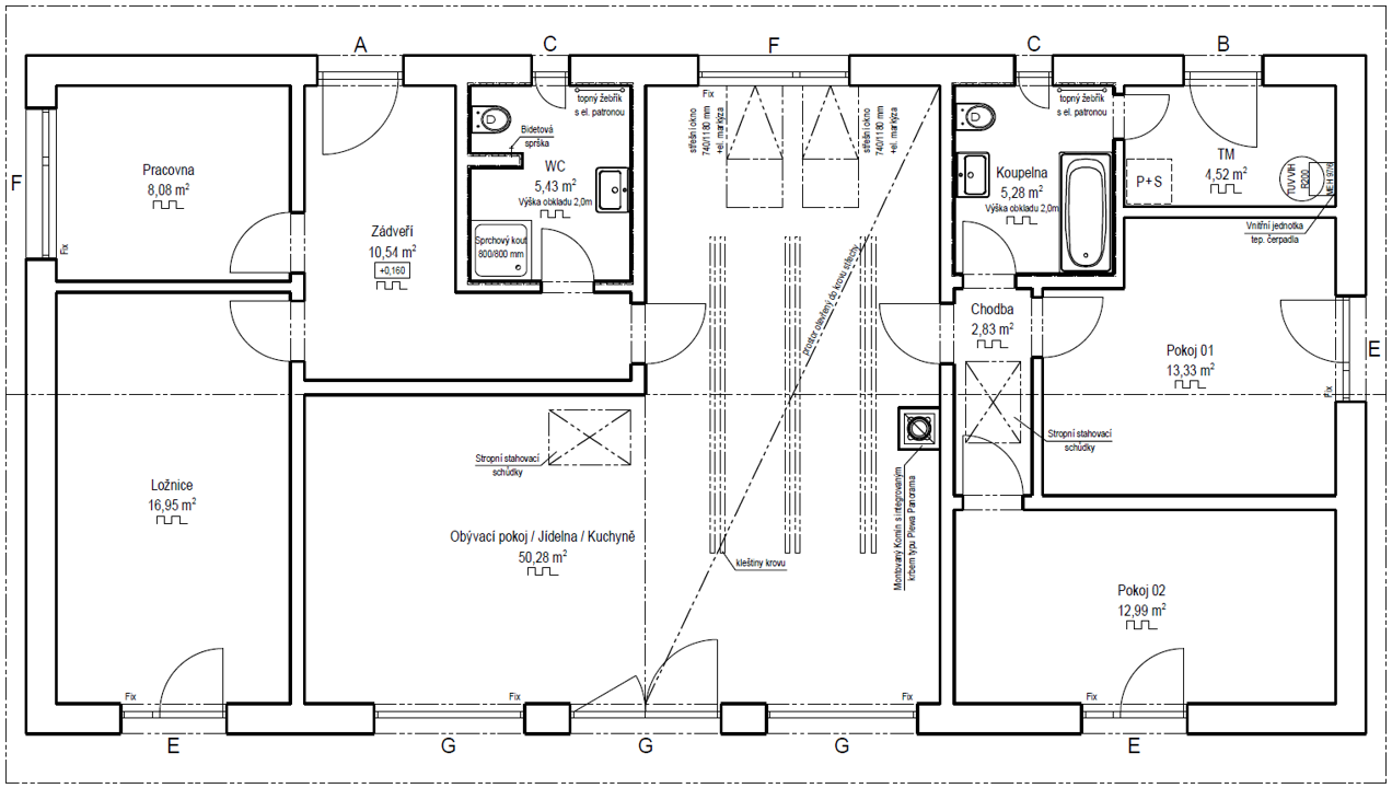
Půdorys ryze individuálního bungalovu se inspiroval typovým projektem Instinkt 1-108, ale nakonec byl upraven zcela podle přání a potřeb nových majitelů. Vytápění je řešeno tepelným čerpadlem napojeným na podlahové topení s chlazením. Dnes už standardní dřevěná okna s izolačním trojsklem zdobí tmavošedý nátěr. Nadstandardní je panoramatický krb. Za povšimnutí jistě stojí i ústřední obývací prostor s kuchyní, který se otevírá do střechy a je prosvětlen dvěma střešními okny. Ovšem ani střecha není úplně standardní. Kvůli místnímu regulativu jsme museli upravit úhel sklonu na 34°.
Virtuální prohlídku rodinného domu těsně před předáním majitelům pro vás natočil obchodní zástupce Jan Waloszek, který byl u tohoto projektu od samého začátku. Klientům také pomáhal přizpůsobit celý dům podle jejich přání i možností stavebního pozemku.
Bungalov na klíč (tedy ve stupni dokončení COMPLETE) je připraven k nastěhování. Stačí instalovat kuchyňskou linku, světla a vybavit dům nábytkem. Prosíme vstupte:
Vybírat můžete z typových bungalovů nebo patrových domů, ale zrovna tak vám rádi postavíme individuální dům podle návrhu vašeho vlastního architekta. V každém případě se ale můžete spolehnout, že od nás dostanete LEPŠÍ DOMOV. Díky použitým konstrukčním materiálům a dalším komponentům splňují konstrukce domů Haas parametry definované pro pasivní domy. A nejenže skvěle udržují tepelný komfort, jsou také bytelnější a lépe chrání před hlukem. Navíc jsou větší, světlejší i luxusnější.
|
Kontaktujte obchodního zástupce: |

Od 1. srpna 2025 přichází v České republice zásadní změna: díky novele Z1 k požární normě ČSN 73 0802 bude možné projektovat a realizovat vícepatrové dřevostavby s výškou až 22,5 metru.
Pasivní dům na klíč od Haas Fertigbau je správnou volbou pro každého, kdo chce spojit úsporu, ekologii a pohodlný životní styl a navíc hledá zkušeného partnera, který se o vše postará od A do Z.
Toužíte po vlastním bydlení a hledáte pozemek na prodej v Chomutově? Nabízíme stavební pozemek s projektem domu Haas a vyřízeným stavebním povolením!