Zpět na výpis článkůDen otevřených dveří 8.10.2023-Choustníkovo Hradiště
V neděli 8. října vám v Choustníkově Hradišti nedaleko Dvora Králové nad Labem otevíráme dveře právě dokončovaného a individuálně upraveného bungalovu Instinkt 1-108.
Zpět na výpis článkůV neděli 8. října vám v Choustníkově Hradišti nedaleko Dvora Králové nad Labem otevíráme dveře právě dokončovaného a individuálně upraveného bungalovu Instinkt 1-108.
V Choustníkově Hradišti právě dokončujeme individuálně upravený bungalov Instinkt 1-108. Udělejte si v sobotu 30. 9. výlet a nenechte si prohlídku ujít. V okolí si pak můžete prohlédnout třeba Safari Park ve Dvoře Králové nad Labem, krásnou barokní památku – hospitálu v Kuksu, nebo se můžete projít Babiččiným údolím v Ratibořicích.
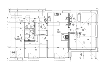
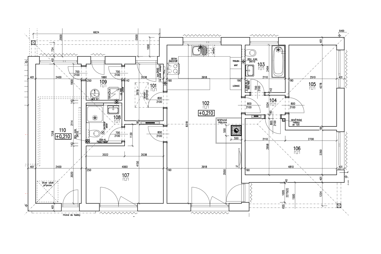
V Choustníkově Hradišti jsme našim klientům postavili individuálně upravený bungalov Instinkt 1-108. Ten patří mezi nejoblíbenější rodinné domy v naší nabídce. A má to své důvody. Užitná plocha přes 108 m2, promyšlená dispozice 5 + KK nebo třeba moderní vzhled. Každý typový dům můžeme jakkoli upravit podle přání majitelů, v tomto případě se naši klienti rozhodli dům podsklepit. Dům je dokončen ve variantě Premium a v době prohlídky bude téměř hotový.
Až 99 procent námi realizovaných domů jsou domy na přání, podle na míru vytvořeného projektu. Nabídka typových domů je většinou pro naše zákazníky jen vstupní inspirací, konečná podoba vždy záleží na jejich konkrétních představách a potřebách.
I vám rádi postavíme dům podle vašeho přání nebo ryze individuálního projektu – ať už ho máte nebo ho pro vás zpracujeme. Navíc u nás za individuální projekt nezaplatíte ani korunu navíc. Studii pro vás vypracuje náš projektant zcela zdarma!
V neděli 8. října mezi 10. a 14. hodinou se můžete v právě dokončovaném rodinném domě podívat, jak by mohl vypadat i váš nový LEPŠÍ DOMOV. Těšit se na vás bude náš obchodní zástupce Jan Waloszek, který vám vysvětlí vše ohledně rodinných domů Haas a představí naši nabídku. Seznámí vás se standardem Haas, ve kterém najdete třeba podlahové topení nebo centrální rekuperaci v ceně domu, služby, které vám stavbu domu usnadní, a aktuální nabídky. Přijďte si s námi popovídat o všem, co vás o stavbě a bydlení v našich domech zajímá.
Čas prohlídky není nutné předem rezervovat, ale pokud chcete mít jistotu, že budeme mít čas věnovat se pouze vám, je lepší předem kontaktovat přímo obchodního zástupce, který bude na místě:
🤵 Jan Waloszek
☎ +420 602 247 599
✉ Jan.Waloszek@Haas-Fertigbau.cz
Těšíme se na vaši návštěvu!
Adresa: Choustníkovou Hradiště (naproti č.p. 123), (zobrazit na mapě)
GPS: 50.4339722N, 15.8693742E
|
Kontaktujte obchodního zástupce: |
|
Typový dům Instinkt 1-108 si prohlédněte ZDE. |

Od 1. srpna 2025 přichází v České republice zásadní změna: díky novele Z1 k požární normě ČSN 73 0802 bude možné projektovat a realizovat vícepatrové dřevostavby s výškou až 22,5 metru.
Pasivní dům na klíč od Haas Fertigbau je správnou volbou pro každého, kdo chce spojit úsporu, ekologii a pohodlný životní styl a navíc hledá zkušeného partnera, který se o vše postará od A do Z.
Toužíte po vlastním bydlení a hledáte pozemek na prodej v Chomutově? Nabízíme stavební pozemek s projektem domu Haas a vyřízeným stavebním povolením!