
Den otevřených dveří 27.11.2022 - Uhříněves
Dveře bungalovu Instinkt v individuální úpravě v Praze Uhříněvsi otevíráme v neděli 27. listopadu. Přijďte si ho prohlédnout a přesvědčit se na vlastní oči j čem jsou rodinné domy Haas lepší.
Dveře bungalovu Instinkt v individuální úpravě v Praze Uhříněvsi otevíráme v neděli 27. listopadu. Přijďte si ho prohlédnout a přesvědčit se na vlastní oči j čem jsou rodinné domy Haas lepší.
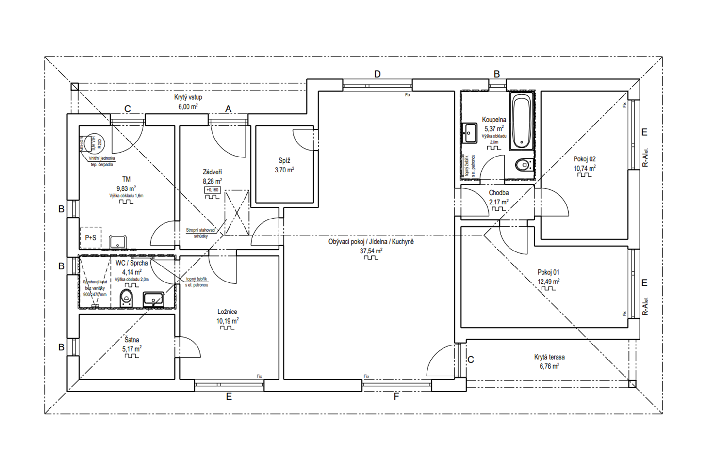
Oblíbený bungalov Instinkt 1-108 v Uhříněvsi jsme tentokrát museli přizpůsobit nejen přáním a potřebám majitelů, ale také úzkému pozemku a blízkosti silnice. Žádné přání pro nás ale není problém, a tak jsme si poradili i s podmínkou paní domu, že u kuchyně musí být spíž a u ložnice koupelna i šatna. Vešel se také širší obývací pokoj a velká technická místnost. Vytápění tepelným čerpadlem napojeným na podlahové topení, už u nás patří do standardu. Nadstandardní jsou elektricky ovládané předokenní rolety.
ZIMNÍ AKČNÍ NABÍDKA
Až do konce ledna nabízíme vybrané typové domy v zimní akční nabídce se slevou až 1 656 000 Kč! Podívejte se, který bude vyhovovat právě vám. Všechny najdete ZDE.
Náš obchodní zástupce Jan Waloszek se už teď těší na všechny zájemce o rodinné domy Haas. V Uhříněvsi bude k dispozici v neděli 27. 11. mezi 10 a 14 hodinou. Čas prohlídky není nutné předem rezervovat, ale pokud chcete mít jistotu, že budeme mít čas věnovat se pouze vám, je lepší předem kontaktovat přímo obchodního zástupce: telefonicky na čísle +420 602 247 599 nebo na e-mailu Jan.Waloszek@Haas-Fertigbau.cz .
Těšíme se na vaši návštěvu!
Adresa: V Kuťatech (vedle č.p.: 899), Praha 10 - Uhříněves (zobrazit na mapě)
GPS: 50.029294N, 14.607908E
![]() |
Kontaktujte obchodního zástupce: |
![]() |
Typové provedení bungalovu Instinkt 1-108 si prohlédněte ZDE. |
Od 1. srpna 2025 přichází v České republice zásadní změna: díky novele Z1 k požární normě ČSN 73 0802 bude možné projektovat a realizovat vícepatrové dřevostavby s výškou až 22,5 metru.
Pasivní dům na klíč od Haas Fertigbau je správnou volbou pro každého, kdo chce spojit úsporu, ekologii a pohodlný životní styl a navíc hledá zkušeného partnera, který se o vše postará od A do Z.
Toužíte po vlastním bydlení a hledáte pozemek na prodej v Chomutově? Nabízíme stavební pozemek s projektem domu Haas a vyřízeným stavebním povolením!