Zpět na výpis článkůDen otevřených dveří 12.4.2025 Podbořany
Další den otevřených dveří je tady! Zveme vás v sobotu 12. dubna na prohlídku bungalovu Instinkt 1-108, který v Podbořanech na Lounsku slouží svým majitelům už téměř šest let.
Zpět na výpis článkůDalší den otevřených dveří je tady! Zveme vás v sobotu 12. dubna na prohlídku bungalovu Instinkt 1-108, který v Podbořanech na Lounsku slouží svým majitelům už téměř šest let.
V sobotu 12. 4. vám otevíráme dveře zabydleného bungalovu Instinkt 1-108. Nenechte si ujít prohlídku domu, který svým majitelům slouží k jejich naprosté spokojenosti už téměř 6 let.
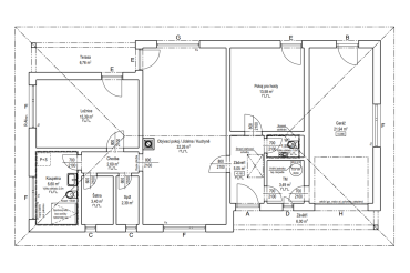
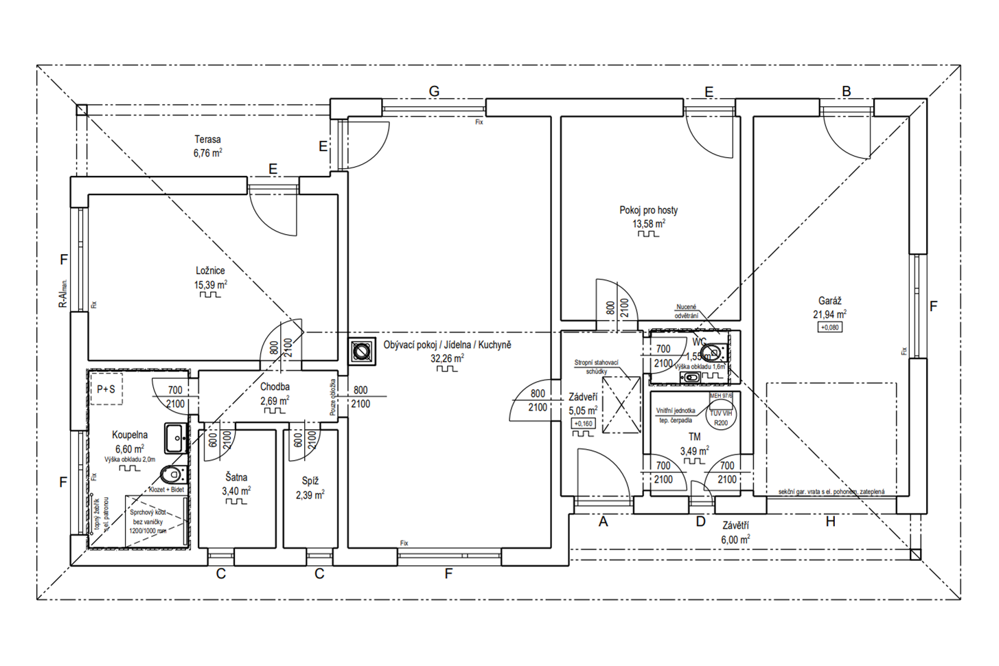
Instinkt 1-108 ve standardu nabízíme s dispozicí 4+kk, dům v Podbořanech je individuálně upraven na dispozici 3+kk. Součástí bungalovu je prostorná krytá terasa a garáž. Obytná plocha 108 m2 nabízí velkorysý prostor pro každého člena rodiny.
Na dni otevřených dveří vás nejen provedeme krásným domem, ale také vás seznámíme s aktuálními nabídkami, které jsme pro vás připravili.
Na všechny zájemce o rodinné domy Haas se v sobotu 12. 4. mezi 10. a 14. hodinou bude těšit náš obchodní zástupce Petr Malec.
Rezervujte si prosím čas návštěvy na telefonu +420 603 261 340 nebo e-mailem:
Petr.Malec2@Haas-Fertigbau.cz.
Zároveň s registrací Vám bude zaslána přesná lokace domu.
Přijďte se podívat! Těšíme se na vás.
Líbí se vám naše rodinné domy? Lepší domov postavíme i vám. Přijďte se za námi podívat, popovídat si s naším odborníkem o všem, co vás o domech Haas zajímá a vyberte si ten svůj. Vybírat můžete z typových bungalovů nebo patrových domů, ale rádi vám postavíme také dům podle návrhu vašeho vlastního architekta.
|
Kontaktujte obchodního zástupce: |
|
Typové provedení bungalovu Instinkt 1-108 si prohlédněte ZDE. |
Typová provedení rodinných domů Haas jsou pro naše klienty vždy inspirací. Konečné uspořádání záleží na požadavcích a přáních každého jednotlivce. Maximálně variabilní je i bungalov Instinkt 1-108. V našem katalogu ho najdete s dispozicí 4 + kk s garáží. Klienti z Podbořan si přáli 3 pokoje s kuchyňským koutem a garáž. Naopak pro větší rodinu ho můžeme nabídnout s dispozicí 5 + kk, třeba i v podobě dvougerenačního bydlení s dvěma vchody.

Od 1. srpna 2025 přichází v České republice zásadní změna: díky novele Z1 k požární normě ČSN 73 0802 bude možné projektovat a realizovat vícepatrové dřevostavby s výškou až 22,5 metru.
Pasivní dům na klíč od Haas Fertigbau je správnou volbou pro každého, kdo chce spojit úsporu, ekologii a pohodlný životní styl a navíc hledá zkušeného partnera, který se o vše postará od A do Z.
Toužíte po vlastním bydlení a hledáte pozemek na prodej v Chomutově? Nabízíme stavební pozemek s projektem domu Haas a vyřízeným stavebním povolením!