
Den otevřených dveří 3.9.2022 - Plzeň-Lhota
Dveře bungalovu Rapido 2-81 těsně před dokončením a předáním klientům otevíráme v Plzni Lhotě. Přijďte si prohlédnout rodinný dům a řekněte si o slevu až 380 000 Kč na vlastní nový dům!
Dveře bungalovu Rapido 2-81 těsně před dokončením a předáním klientům otevíráme v Plzni Lhotě. Přijďte si prohlédnout rodinný dům a řekněte si o slevu až 380 000 Kč na vlastní nový dům!
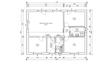
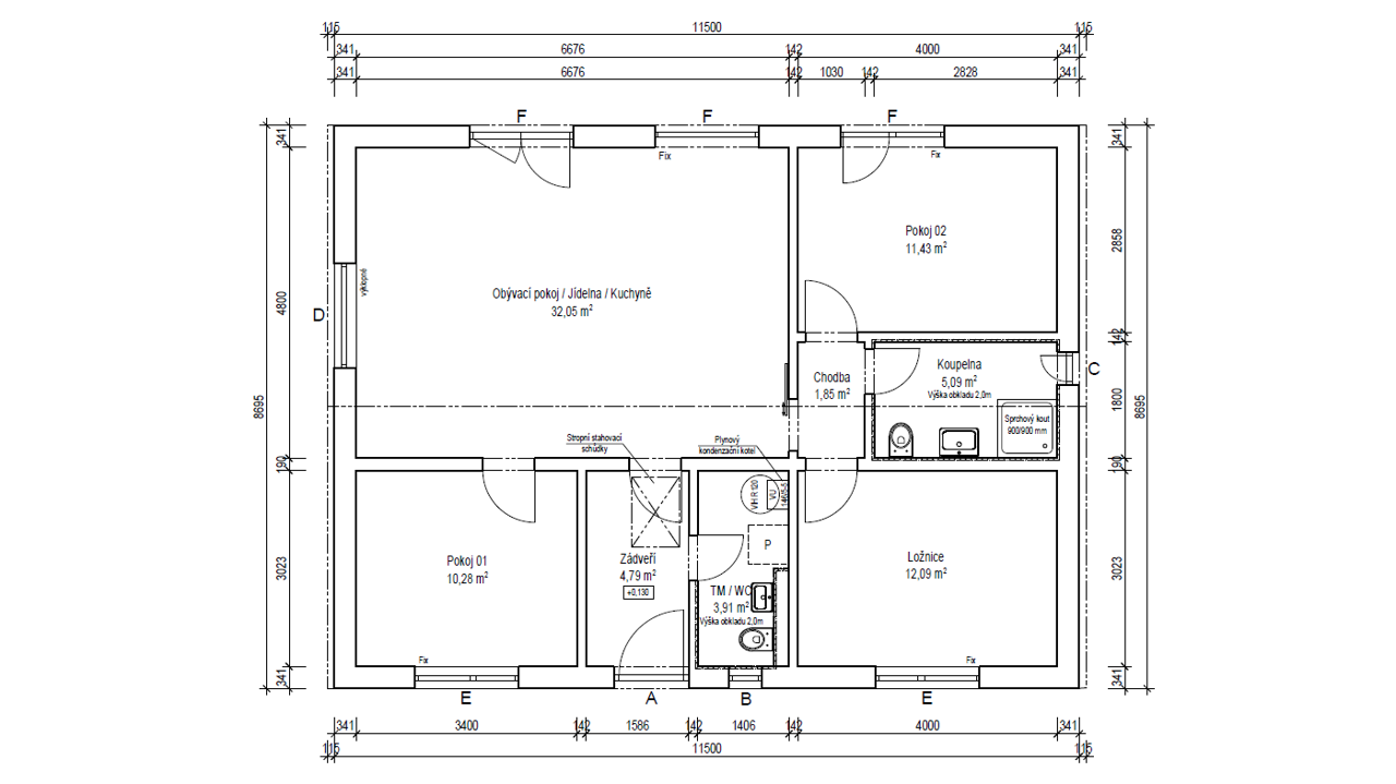
Bungalov Rapido 2-81 v Plzni - Lhotě je postaven v téměř typovém provedení. Oproti standardnímu vytápění tepelným čerpadlem napojeným na teplovodní topení, zvolili klienti plynový kondenzační kotel a radiátory. Nabízí dispozici 4+KK s koupelnou a technickou místností. Z obývacího pokoje a ložnice je možný přístup na terasu, kterou si už klient sám zakryje pergolou.
Rodinný dům je začleněn do staré zástavby původního dvora statku přímo na návsi obce. I proto je použita červená střešní krytina, aby dům hezky zapadl do koloritu obce.
Bungalov na klíč jsme ve Lhotě začali stavět v polovině června a v polovině září předáme majitelům klíč od dokončeného domu. Po sobotním dni otevřených dveří doděláme ještě finální podlahové krytiny a osadíme dveře včetně zárubní, aby byl bungalov připraven k nastěhování.
Pokud se předem registrujete a pak na Den otevřených dveří přijdete, dáme vám poukaz v hodnotě 30 000 Kč na vybavení domu. Ale to samozřejmě není všecko! Získat můžete:
Přijďte si prohlédnout tento rodinný dům v sobotu 3. září mezi 10 a 14 hodinou. Čas prohlídky není nutné předem rezervovat, ale pokud chcete mít jistotu, že budeme mít čas věnovat se pouze vám, je lepší předem kontaktovat přímo obchodního zástupce pana Petra Malce: telefonicky na čísle +420 603 261 340 nebo na e-mailu Petr.Malec2@Haas-Fertigbau.cz.
Těšíme se na vaši návštěvu!
Adresa: Náves 6/22, Plzeň 10 - Lhota (zobrazit na mapě)
GPS: 49.6888347N, 13.3230156E
![]() |
Kontaktujte obchodního zástupce: |
![]() |
Typové provedení bungalovu Rapido 2-81 si prohlédněte ZDE. |
Od 1. srpna 2025 přichází v České republice zásadní změna: díky novele Z1 k požární normě ČSN 73 0802 bude možné projektovat a realizovat vícepatrové dřevostavby s výškou až 22,5 metru.
Pasivní dům na klíč od Haas Fertigbau je správnou volbou pro každého, kdo chce spojit úsporu, ekologii a pohodlný životní styl a navíc hledá zkušeného partnera, který se o vše postará od A do Z.
Toužíte po vlastním bydlení a hledáte pozemek na prodej v Chomutově? Nabízíme stavební pozemek s projektem domu Haas a vyřízeným stavebním povolením!