Zpět na výpis článkůDen otevřených dveří 29.7.2023 - Živanice
V Živanicích - Neradu na Pardubicku pro vás v sobotu 29. 7. 2023 otevíráme dveře individuálně upraveného rodinného domu, který zde právě stavíme pro mladou rodinu.
Zpět na výpis článkůV Živanicích - Neradu na Pardubicku pro vás v sobotu 29. 7. 2023 otevíráme dveře individuálně upraveného rodinného domu, který zde právě stavíme pro mladou rodinu.
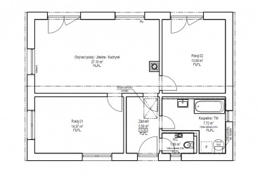
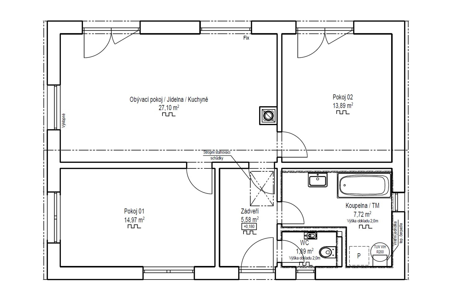
Mladí klienti se rozhodli pro stavbu domu místo koupě bytu. Měli ale omezený rozpočet, kterému jsme museli přizpůsobit projekt bungalovu. Přesto nyní individuálně upravený rodinný dům Rapido 2-81 nabízí svým obyvatelům 71 m2 užitné plochy a dispozici 3 + KK. Výhodou je dvacetimetrová pochozí půda pod sedlovou střechou, která i díky většímu úhlu zkosení nabízí dostatek místa pro uložení sezónních věcí.
Rodinný dům stavíme ve standardu Haas PREMIUM, to znamená, že bude vybaven tepelným čerpadlem, podlahovým topením i komínem pro připojení krbu nebo krbových kamen. Zvenku zdobí fasádu bungalovu obložení ze smrkových palubek, zapuštěných do fasády.
Až 99% námi realizovaných domů jsou domy na přání, podle na míru vytvořeného projektu. Nabídka typových domů je většinou pro naše zákazníky jen vstupní inspirací, konečná podoba vždy záleží na jejich konkrétních představách a potřebách.
I vám rádi postavíme dům podle vašeho přání nebo ryze individuálního projektu – ať už ho máte anebo ho pro vás zpracujeme. Navíc u nás za individuální projekt nezaplatíte ani korunu navíc. Studii pro vás vypracuje náš projektant zcela zdarma!
Rezervujte si svou prohlídku
Přijďte si prohlédnout, jak stavíme a poradit se o tom, co bychom mohli udělat pro vás. Náš specialista bude připraven provést vás rodinným domem i odpovědět na veškeré vaše dotazy v sobotu 29. července mezi 10 a 14 hodinou. Čas prohlídky je tentokrát nutné předem rezervovat. Kontaktujte prosím předem přímo obchodního zástupce, který bude na místě:
🤵 Jan Waloszek
☎ +420 602 247 599
✉ Jan.Waloszek@Haas-Fertigbau.cz
Prohlédněte si bungalov Rapido 2-81 také ve 3D virtuální realitě:
Těšíme se na vaši návštěvu!
Adresa: Nerad (vedla č.p. 72), Živanice (zobrazit na mapě)
GPS: 50.0640000N, 15.6288889E
|
Kontaktujte obchodního zástupce: |
|
Typový dům Rapido 2-81 si prohlédněte ZDE. |

Od 1. srpna 2025 přichází v České republice zásadní změna: díky novele Z1 k požární normě ČSN 73 0802 bude možné projektovat a realizovat vícepatrové dřevostavby s výškou až 22,5 metru.
Pasivní dům na klíč od Haas Fertigbau je správnou volbou pro každého, kdo chce spojit úsporu, ekologii a pohodlný životní styl a navíc hledá zkušeného partnera, který se o vše postará od A do Z.
Toužíte po vlastním bydlení a hledáte pozemek na prodej v Chomutově? Nabízíme stavební pozemek s projektem domu Haas a vyřízeným stavebním povolením!