Zpět na výpis článků

Den otevřených dveří 29. 11. Benešov

24. 11. 2025

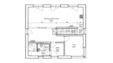
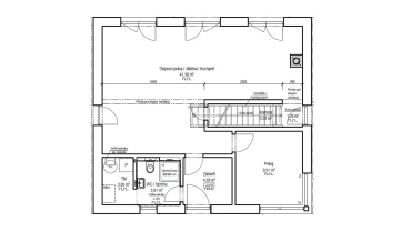
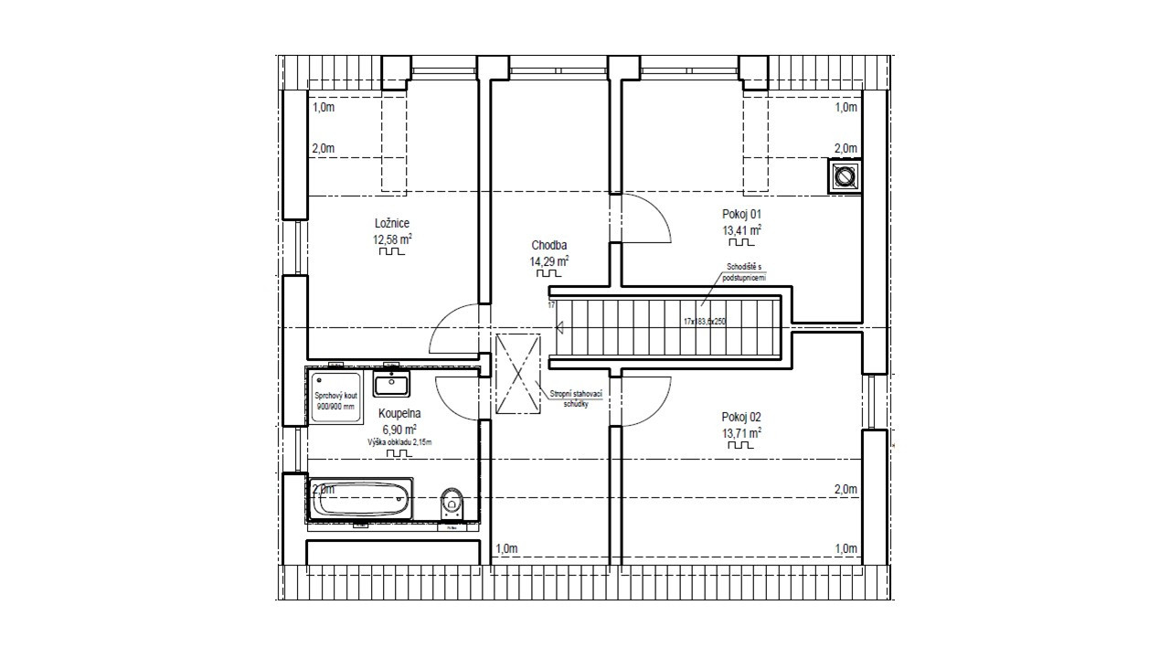
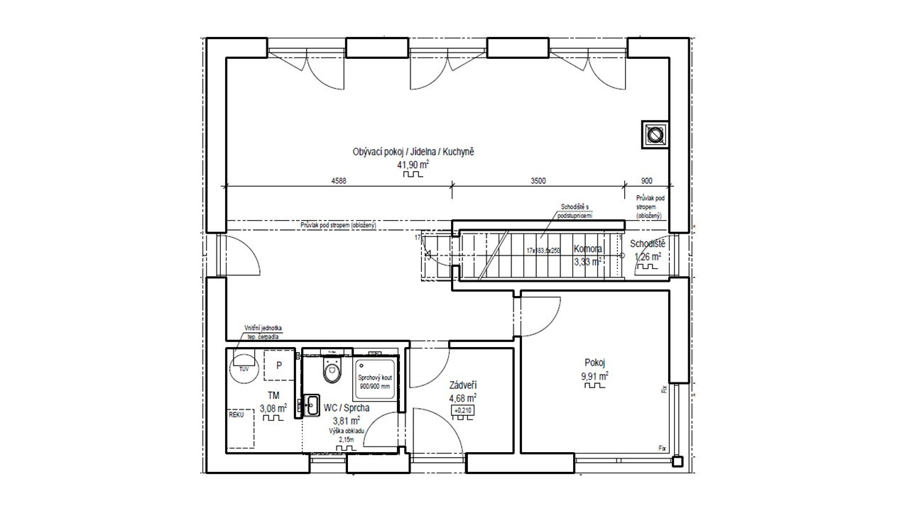
Nenechte si v sobotu 29. 11. ujít prohlídku individuálně navrženého patrového domu, který právě dokončujeme u Benešova. Tento dům je ztělesněním špičkového standardu Haas Premium. Kromě komfortu a kvality dům nabízí špičkové technologie, které zaručí snížení provozních nákladů na absolutní minimum.

Vypravte se v sobotu 29. 11. k Benešovu a přijďte si prohlédnout patrový dům, který splňuje přísné energetické standardy a využívá nejmodernější technologie budoucnosti. Dům je vybaven špičkovým rekuperačním systémem řízeného větrání zn. Zehnder, tepelným čerpadlem zn. Vaillant s podlahovým vytápěním a chlazením, nechybí komín s přípravou pro napojení krbu nebo elektrické venkovní stínění ve všech oknech.

Dům bude navíc doplněn výkonným systémem fotovoltaické elektrárny s vlastním bateriovým úložištěm, které zajišťuje nezávislost a šetrnost k životnímu prostředí. Jelikož dům splňuje ty nejpřísnější energetické požadavky, klienti získali dotaci NZÚ Pasiv+ a částku použili právě na nákup celého systému fotovoltaické elektrárny.

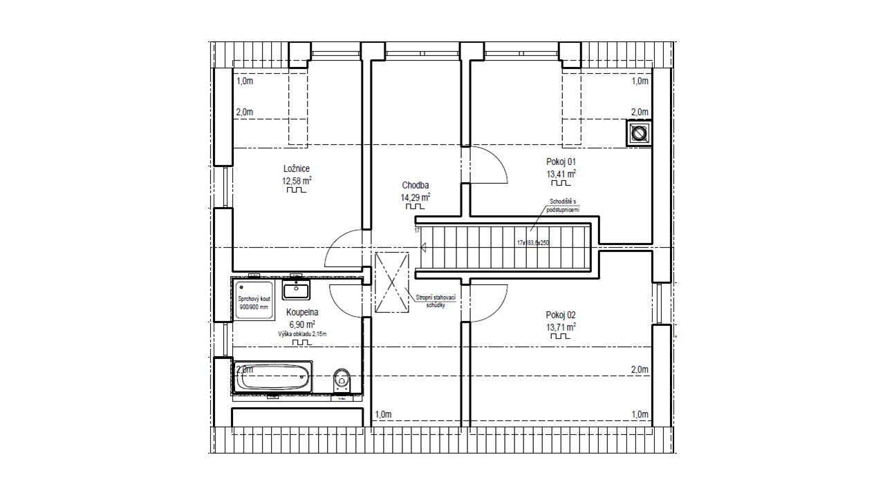
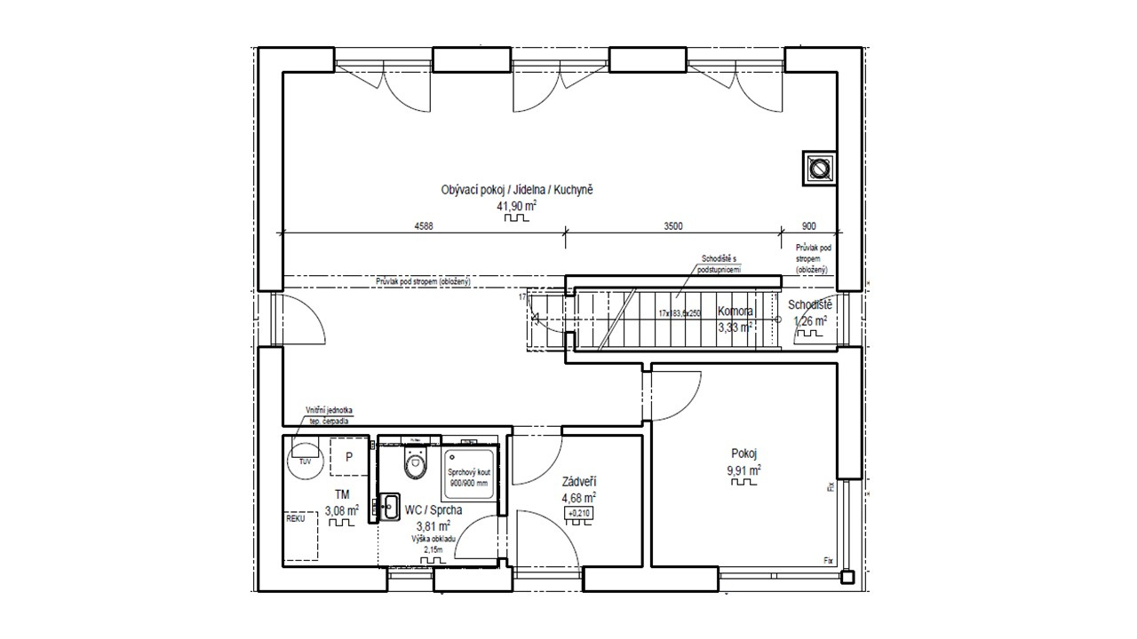
Tento individuálně navržený dům byl původně inspirovaný naším typovým řešením, to se ale na základě velmi jasné představy klientů o podobě domu přepracovalo. Dům poskytne díky promyšlenému vnitřnímu uspořádání spoustu prostoru pro společné chvíle i soukromí všem členů rodiny.

Na co se můžete těšit?

  •  zastavěná plocha 86,5 m²

  •  užitná plocha 132,5 m²

  •  dispozice 5+kk

  •  kuchyňský kout spojený s jídelnou a obývacím prostorem

  •  čtyři další samostatné pokoje

  •  dvě koupelny

  •  šatna

  •  spíž na potraviny

  •  technická místnost

  •  pochozí půda třeba pro uložení sezónních věcí

  •  niky pro umístění vestavěného nábytku

  •  velkorysý prosklený vstup z hlavní místnosti na prosluněnou jižní terasu s přípravou na pergolu

Jak na prohlídku?

Na všechny zájemce o rodinné domy Haas se v sobotu 29.11. mezi 9. a 15. hodinou bude na místě těšit náš obchodní zástupce Michal Záhora, který vás domem provede, seznámí s možnostmi stavby a všemi službami a novinkami, které jsme pro vás připravili.

Rezervujte si prosím čas návštěvy:
na telefonu: +420 773 266 100 
nebo e-mailem: Michal.Zahora@Haas-Fertigbau.cz

Zároveň s registrací Vám bude zaslána přesná lokace domu.

PŘEČTĚTE SI TAKÉ

Patrová dřevostavba: budoucnost komerčních staveb v Česku

Patrová dřevostavba: budoucnost komerčních staveb v Česku

Od 1. srpna 2025 přichází v České republice zásadní změna: díky novele Z1 k požární normě ČSN 73 0802 bude možné projektovat a realizovat vícepatrové dřevostavby s výškou až 22,5 metru.

Pasivní dům na klíč: komfort, který šetří energii i peníze

Pasivní dům na klíč: komfort, který šetří energii i peníze

Pasivní dům na klíč od Haas Fertigbau je správnou volbou pro každého, kdo chce spojit úsporu, ekologii a pohodlný životní styl a navíc hledá zkušeného partnera, který se o vše postará od A do Z.

Pozemek na prodej v Chomutově

Pozemek na prodej v Chomutově

Toužíte po vlastním bydlení a hledáte pozemek na prodej v Chomutově? Nabízíme stavební pozemek s projektem domu Haas a vyřízeným stavebním povolením!