Zpět na výpis článků

Den otevřených dveří 20.11.2022 - Velké Přílepy

12. 11. 2022

Všechny zájemce o dřevostavby očekáváme v neděli 20. listopadu ve Velkých Přílepech na Praze-západ, kde právě dokončujeme bungalov podle individuálního projektu. Přijďte se podívat mezi 10 a 14 hodinou.

Pro rodinu z Velkých Přílep bylo rozhodnutí postavit dřevostavbu, jasnou volbou. Rodiče majitelky bydlí v dřevostavbě ve vedlejší vesnici a na nízkoenergetické bydlení nedají dopustit. Když k dalším výhodám LEPŠÍHO DOMOVA od Haas, přičetli ještě rychlost stavby, bylo rozhodnuto i o dodavateli.

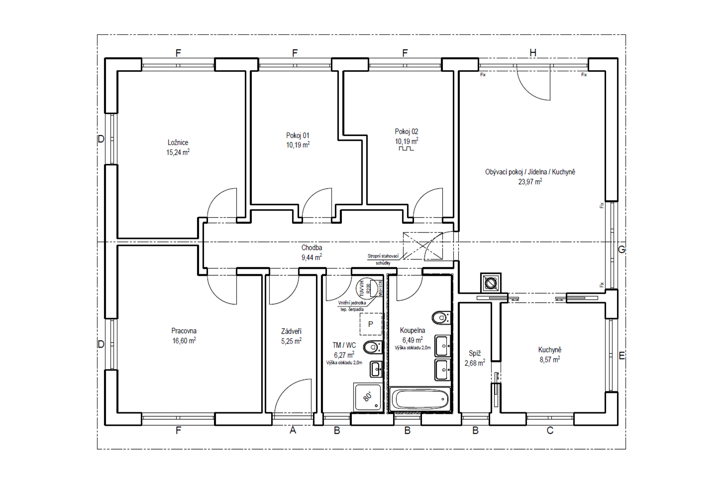
Individuální bungalov

S návrhem domu mladým majitelům pomáhala maminka, která díky vlastním zkušenostem, vnesla do projektu spoustu praktických maličkostí. Vznikl tak ryze individuální dům, který přesně odpovídá přáním a požadavkům klientů.

Na užitné ploše 115 m2 se nachází dispozice 5 + 1 se spižírnou u kuchyně, koupelnou a nezbytnou technickou místností s druhým WC a sprchovým koutem. Dům je vytápěn tepelným čerpadlem napojeným na podlahové topení. Navíc je v domě zabudovaný komín pro připojení krbu

 

ZIMNÍ AKČNÍ NABÍDKA

Až do konce ledna nabízíme vybrané typové domy v zimní akční nabídce se slevou až 1 656 000 Kč! Podívejte se, který bude vyhovovat právě vám. Všechny najdete ZDE.


Jak na prohlídku?

V rodinném domě ve Velkých přílepech se bude náš odborník těšit na vaši návštěvu v neděli 20. listopadu mezi 10 a 14 hodinou. Čas prohlídky není nutné předem rezervovat, ale pokud chcete mít jistotu, že budeme mít čas věnovat se pouze vám, je lepší předem kontaktovat přímo obchodního zástupce pana Jana Waloszka, telefonicky na čísle: +420 602 247 599 nebo e-mailem: Jan.Waloszek@Haas-Fertigbau.cz

Těšíme se na vaši návštěvu!

Adresa: V Líchách (naproti č.p. 1031), Velké Přílepy (zobrazit na mapě)
GPS: 50.1573550N, 14.3079500E

Kontaktujte obchodního zástupce:
Jan Waloszek
tel.: +420 602 247 599
e-mail: Jan.Waloszek@Haas-Fertigbau.cz 
Máte také zájem o individuální dům?
Inspirujte se ZDE.

 

PŘEČTĚTE SI TAKÉ

Patrová dřevostavba: budoucnost komerčních staveb v Česku

Patrová dřevostavba: budoucnost komerčních staveb v Česku

Od 1. srpna 2025 přichází v České republice zásadní změna: díky novele Z1 k požární normě ČSN 73 0802 bude možné projektovat a realizovat vícepatrové dřevostavby s výškou až 22,5 metru.

Pasivní dům na klíč: komfort, který šetří energii i peníze

Pasivní dům na klíč: komfort, který šetří energii i peníze

Pasivní dům na klíč od Haas Fertigbau je správnou volbou pro každého, kdo chce spojit úsporu, ekologii a pohodlný životní styl a navíc hledá zkušeného partnera, který se o vše postará od A do Z.

Pozemek na prodej v Chomutově

Pozemek na prodej v Chomutově

Toužíte po vlastním bydlení a hledáte pozemek na prodej v Chomutově? Nabízíme stavební pozemek s projektem domu Haas a vyřízeným stavebním povolením!