Zpět na výpis článků

Den otevřených dveří 13. 7. 2024 - Raduň

9. 7. 2024

Nenechte si ujít prohlídku luxusního rodinného domu u Opavy! Už tuto sobotu 13. 7. vám otevíráme dveře individuálně upraveného patrového domu Avanti 2-147. Věřili byste, že dům byl pod střechou za pouhý den a půl?

Zveme vás na prohlídku patrového rodinného domu, který právě dokončujeme v provedení Haas Premium COMPLETE, tedy ihned k nastěhování. 

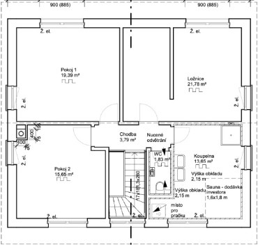
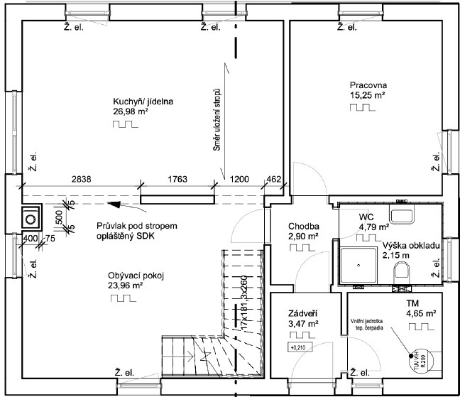
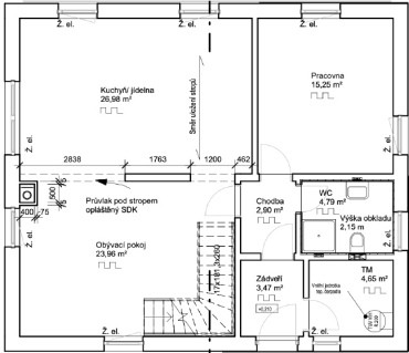
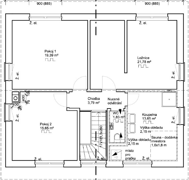
Jeho majitelé s námi postavili menší dům již před 10 lety. S rozrůstající se rodinou si přáli větší domov, a tak jsme pro ně připravili návrh vycházející z naší typové dřevostavby Avanti 2-147. Výsledkem je dům upravený k nepoznání, který splňuje všechny jejich potřeby a přání. Na okapové stěně jsme jej zvýšili o metr a půl a přidali okna, díky nimž bude v podkroví spousta světla. Podkroví je navíc ještě prostornější zásluhou upraveného sklonu střechy. Zvenku nechybí elegantní dřevěné obložení, zapuštěné do fasády.  

Samozřejmostí jsou nejmodernější technologie pro pohodlný život - fotovoltaika, tepelné čerpadlo napojené na podlahové teplovodní vytápění, centrální rekuperace vzduchu nebo komín pro napojení krbu.

Co vše individuální rodinný dům nabízí?

  •  Užitnou plochu 158 m2
  •  Zastavěnou plochu 102 m2
  •  Dispozici 5+kk s velkým podkrovím
  •  Velký obývací pokoj s kuchyňským koutem
  •  Koupelnu s místem pro saunu
  •  Doplněnou příčku v ložnici v patře, kde může vzniknout šatna nebo pracovní kout

Přijďte se podívat! A podívejte se také na video, jak dům rostl před očima. 

Jak na prohlídku?

Na všechny zájemce o rodinné domy Haas se v sobotu 13. 7. mezi 10. a 14. hodinou bude těšit náš obchodní zástupce Jan Waloszek, který klienty provázel celou stavbou od prvotních návrhů až po předání domu a vás domem provede také. Navíc vás seznámí s možnostmi stavby a všemi službami a novinkami, které jsme pro vás připravili.
Abyste měli jistotu, že se bude moci věnovat jen vám, zarezervujte si prosím čas prohlídky na telefonu +420 603 261 340 nebo

Těšíme se na vás!

Adresa: Na Vyhlídce 333, Raduň (zobrazit na mapě)
GPS: 49.8952781N, 17.9486697E

Naše rodinné domy si můžete prohlédnout zde 

Kontaktujte obchodního zástupce:
Jan Waloszek
tel.: +420 602 247 599
e-mail: Jan.Waloszek@Haas-Fertigbau.cz 
Typové provedení rodinného domu Avanti 2-147 si prohlédněte ZDE.

PŘEČTĚTE SI TAKÉ

Patrová dřevostavba: budoucnost komerčních staveb v Česku

Patrová dřevostavba: budoucnost komerčních staveb v Česku

Od 1. srpna 2025 přichází v České republice zásadní změna: díky novele Z1 k požární normě ČSN 73 0802 bude možné projektovat a realizovat vícepatrové dřevostavby s výškou až 22,5 metru.

Pasivní dům na klíč: komfort, který šetří energii i peníze

Pasivní dům na klíč: komfort, který šetří energii i peníze

Pasivní dům na klíč od Haas Fertigbau je správnou volbou pro každého, kdo chce spojit úsporu, ekologii a pohodlný životní styl a navíc hledá zkušeného partnera, který se o vše postará od A do Z.

Pozemek na prodej v Chomutově

Pozemek na prodej v Chomutově

Toužíte po vlastním bydlení a hledáte pozemek na prodej v Chomutově? Nabízíme stavební pozemek s projektem domu Haas a vyřízeným stavebním povolením!