Pomáháme svým klientům navrhnout vysněný domov do všech detailů, díky nimž si v něm užijí každý den.

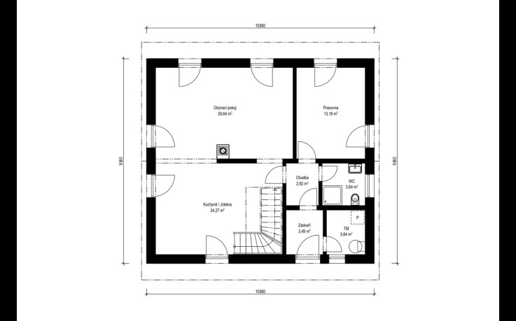
Patrový rodinný dům Avanti 2-147 je ukázkou moderního domu zapadajícího do městské i vesnické architektury. V podkroví jsou pod sedlovou střechou umístěny 3 ložnice, koupelna a samostatné WC. Přízemí ovládá obrovský obytný prostor propojený s kuchyní a jídelnou, doplněný o pracovnu, koupelnu a technickou místnost.
| tepelná ztráta domu* | spotřeba energie pro vytápění | náklady na vytápění* - tepelné čerpadlo (standard) |
| 4.970 W | 11,9 MWh/rok | 11.412 Kč/rok |
* Podmínky pro výpočet tepelných ztrát a nákladů
Kompletně pro vás vyřídíme ZVÝHODNĚNÉ financování nového domu.