Zpět na výpis článků

Den otevřených dveří 18. 12. Otvice u Chomutova

25. 11. 2025

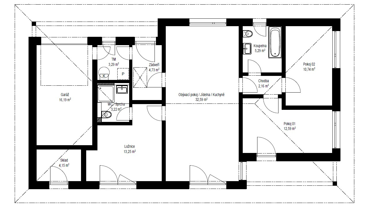
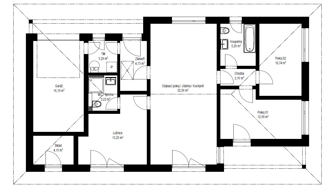
POZOR ZMĚNA! V novém termínu ve čtvrtek 18. 12. se přijďte podívat do Otvic u Chomutova. Od 12 do 16 hodin pro vás máme přichystaný další den otevřených dveří. Provedeme vás právě dokončovaným bungalovem Instinkt 1-108, postaveným přesně podle typového projektu.

V Otvicích u Chomutova vás provedeme bungalovem Instinkt 1-108, který patří k nejoblíbenějším domům z naší nabídky. Ostatně pro majitele jsme postavili už druhý totožný dům ve stejné lokalitě.

Na co se můžete těšit?

  •  zastavěná plocha 150 m²

  •  užitná plocha 108 m²

  •  dispozice 4+kk

  •  obývací pokoj s kuchyňským koutem a jídelnou

  •  další tři místnosti

  •  koupelna

  •  technická místnost

  •  sklad

  •  elegantní obložení fasády dřevem

  •  francouzská okna se vstupem na prostornou terasu

  •  krytá terasa

  •  garáž součástí domu

Garáž je možné v budoucnu upravit na provozovnu nebo využít jako prostor pro podnikání.

Jak na prohlídku?

Na všechny zájemce o rodinné domy Haas se ve čtvrtek 18. 12. mezi 12. a 16. hodinou bude na místě těšit náš obchodní zástupce Josef Rynda, který vás domem provede, seznámí s možnostmi stavby a všemi službami a novinkami, které jsme pro vás připravili.

Rezervujte si prosím čas návštěvy:
na telefonu: +420 606 305 629
nebo e-mailem: Josef.Rynda@Haas-Fertigbau.cz

Zároveň s registrací Vám bude zaslána přesná lokace domu.

PŘEČTĚTE SI TAKÉ

Patrová dřevostavba: budoucnost komerčních staveb v Česku

Patrová dřevostavba: budoucnost komerčních staveb v Česku

Od 1. srpna 2025 přichází v České republice zásadní změna: díky novele Z1 k požární normě ČSN 73 0802 bude možné projektovat a realizovat vícepatrové dřevostavby s výškou až 22,5 metru.

Pasivní dům na klíč: komfort, který šetří energii i peníze

Pasivní dům na klíč: komfort, který šetří energii i peníze

Pasivní dům na klíč od Haas Fertigbau je správnou volbou pro každého, kdo chce spojit úsporu, ekologii a pohodlný životní styl a navíc hledá zkušeného partnera, který se o vše postará od A do Z.

Pozemek na prodej v Chomutově

Pozemek na prodej v Chomutově

Toužíte po vlastním bydlení a hledáte pozemek na prodej v Chomutově? Nabízíme stavební pozemek s projektem domu Haas a vyřízeným stavebním povolením!