Zpět na výpis článků

Den otevřených dveří 1.10. - Janov (Nový Bor)

26. 9. 2022

Nestihli jste navštívit stavební veletrh FOR ARCH, ale zajímají vás moderní dřevostavby? Přijďte se na jednu podívat do Janova u Nového Boru v sobotu 1.10. Můžete získat slevu až 380 000 Kč na vlastní nový dům.

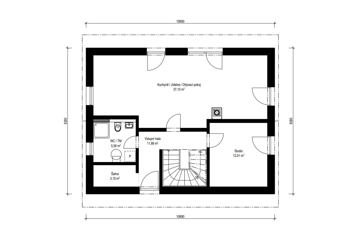
Patrový rodinný dům Spring 3-134 právě dokončujeme v Janově u Nového Boru. Jedná se už o druhý dům Haas, který pro rozrůstající se rodinu stavíme. Ten první jsme stavěli před 15 lety. Později se rodina kvůli pracovní příležitosti přestěhovala do zahraničí a nyní když se vrací zpět do Čech, potřebují dům větší. Díky zkušenostem a velké spokojenosti se stavbou prvního domu byla společnost Haas první a jednoznačnou volbou.

Rodinný dům Haas lze postavit i na dálku

Celý proces plánování stavby nového domu, administrativy, projekce i financování jsme s klienty zvládli na dálku, abychom vyhověli jejich přání: Po návratu ze zahraničí se rovnou nastěhovat do nového domu. I přes logistickou náročnost, jsme zvládli vše, včetně pomoci klientům s koupí nového pozemku a prodeje původního domu.

O energetickou úsporu jde v první řadě

Rodinný dům na klíč je téměř hotový, klienti jsou sbalení, připravení na stěhování a na novou etapu svého života. Vám nabízíme jedinečnou příležitost, prohlédnout si dům těsně před jejich nastěhováním. Vytápění je standardně řešeno podlahovým teplovodním topením napojeným na tepelné čerpadlo a k dispozici je komín s přípravou pro krb. Pro ještě větší úsporu nákladů rodiny je také realizována příprava pro fotovoltaiku. Masivní dřevěná pergola je pak ozdobou celého domu.

Nabídka platí jen do konce října!

Pro všechny zájemce o rodinné domy Haas jsme připravili jedinečnou nabídku, která platí pouze do konce října. Tak neváhejte! Zastavte se za námi v sobotu 1. října. Můžete se přesvědčit nejen o kvalitách našich dřevostaveb, ale navíc máte možnost získat slevu až 380 000 Kč. Jak na to? Je to jednoduché. První krok je navštívit den otevřených dveří, vybrat si dům z naší nabídky nebo přijít s vlastním architektonickým návrhem.

Získejte slevu až 380 000 Kč:

  • Slevu 250 000 Kč na rodinný dům.
    Haas slaví 50 let a my vám dáme slevu 5 000 Kč za každý rok, který jsme na trhu. Více informací o akci naleznete ZDE.
  • Poukaz v hodnotě 100 000 Kč na kuchyňskou linku.
    Při podpisu smlouvy o dílo od nás dostanete kupon na novou kuchyň v hodnotě 100 000 Kč. Podmínky využití kuponu naleznete ZDE
  • 30 000 Kč na vybavení domácnosti.
    Stačí, když se zaregistrujete na sobotní nebo nedělní Den otevřených dveří přes formulář níže na stránce a pak dorazíte.
    Pokud se během následujících 3 měsíců domluvíme na podpisu smlouvy o stavbě domu, my vám na oplátku věnujeme poukázku v hodnotě 30 000 Kč na vybavení vašeho nového domu. Podrobné podmínky čerpání odměny naleznete ZDE.

Přesvědčte se o kvalitě na vlastní oči

Náš obchodní zástupce Josef Rynda se bude těšit na vaši návštěvu v sobotu 1. 10. 2022 mezi 10 a 14 hodinou. Chcete-li mít jistotu, že se budeme moci věnovat pouze vám, je lepší si čas prohlídky předem rezervovat. Kontaktovat můžete přímo obchodního zástupce pana Josefa Ryndu, telefonicky na čísle: +420 606 305 629 nebo e-mailem: Josef.Rynda@Haas-Fertigbau.cz

Těšíme se na vaši návštěvu!

Adresa: Janov (vedle č. p. 257), Nový Bor (zobrazit na mapě)
GPS: 50.7418889N, 14.5773056E

Kontaktujte obchodního zástupce:
Josef Rynda
tel.: +420 606 305 629
e-mail: Josef.Rynda@Haas-Fertigbau.cz 
Typové provedení rodinného domu Spring 3-134 si prohlédněte ZDE.

 

 

Registrace na:

Podmínky zpracování osobních údajů
* Položky označené hvězdičkou jsou povinné

PŘEČTĚTE SI TAKÉ

Patrová dřevostavba: budoucnost komerčních staveb v Česku

Patrová dřevostavba: budoucnost komerčních staveb v Česku

Od 1. srpna 2025 přichází v České republice zásadní změna: díky novele Z1 k požární normě ČSN 73 0802 bude možné projektovat a realizovat vícepatrové dřevostavby s výškou až 22,5 metru.

Pasivní dům na klíč: komfort, který šetří energii i peníze

Pasivní dům na klíč: komfort, který šetří energii i peníze

Pasivní dům na klíč od Haas Fertigbau je správnou volbou pro každého, kdo chce spojit úsporu, ekologii a pohodlný životní styl a navíc hledá zkušeného partnera, který se o vše postará od A do Z.

Pozemek na prodej v Chomutově

Pozemek na prodej v Chomutově

Toužíte po vlastním bydlení a hledáte pozemek na prodej v Chomutově? Nabízíme stavební pozemek s projektem domu Haas a vyřízeným stavebním povolením!