Pomáháme svým klientům navrhnout vysněný domov do všech detailů, díky nimž si v něm užijí každý den.

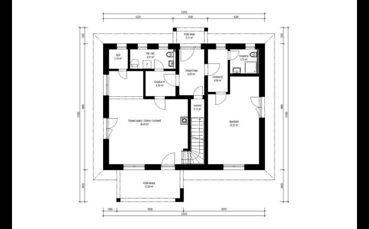
Velká vila Genera 2-176 ubytuje opravdu velkou rodinu na užitné ploše 176 m2 a dispozici 5 + KK. V přízemí je v oddělené části prostorný apartmán s vlastní koupelnou, který může sloužit jako samostatný byt 1 + KK. Zbytek přízemí zabírá obývací pokoj s kuchyňským koutem, spíž a technická místnost. V patře jsou 3 ložnice, 2 koupelny a šatna.
| tepelná ztráta domu* | spotřeba energie pro vytápění | náklady na vytápění* - tepelné čerpadlo (standard) |
| 5.367 W | 15,3 MWh/rok | 14.673 Kč/rok |
Kompletně pro vás vyřídíme ZVÝHODNĚNÉ financování nového domu.