Pomáháme svým klientům navrhnout vysněný domov do všech detailů, díky nimž si v něm užijí každý den.

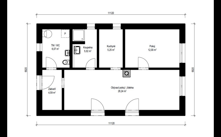
Bungalov Easy 5-59 je největší z řady Easy. Na užitné ploše přes 59 m2 se nachází dost prostorný obývací, samostatná kuchyň, ložnice, koupelna, technická místnost a předsíň. Přesto, že se jedná o menší kompaktní bungalov nabízí všechny veškeré výhody dřevostaveb Haas.
| tepelná ztráta domu* | spotřeba energie pro vytápění | náklady na vytápění* - tepelné čerpadlo (standard) |
| 2.441 W | 5,9 MWh/rok | 5.658 Kč/rok |
Kompletně pro vás vyřídíme ZVÝHODNĚNÉ financování nového domu.