Pomáháme svým klientům navrhnout vysněný domov do všech detailů, díky nimž si v něm užijí každý den.
Nechte se inspirovat a doporučit si od již spokojených zákazníků na osobní prohlídce jejich úspěšné stavby. Společně s vámi pak snadno vymyslíme ten nejlepší domov na nejkrásnějším místě. V HAAS FERTIGBAU jsme pak schopni zaštítit nejen jeho kompletní stavbu, ale i výhodné financování či záruční a pozáruční servis. To vše za velice výhodnou cenu při dodržení maximální kvality materiálu. Výběr toho pravého rodinného domu nikdy nebyl snadnější.

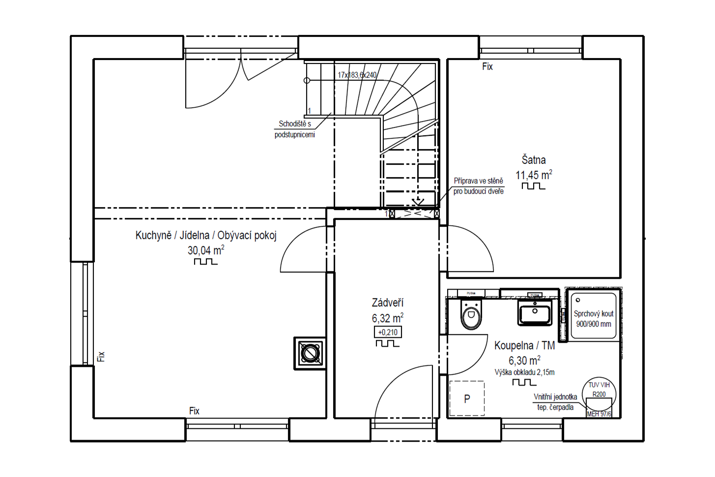
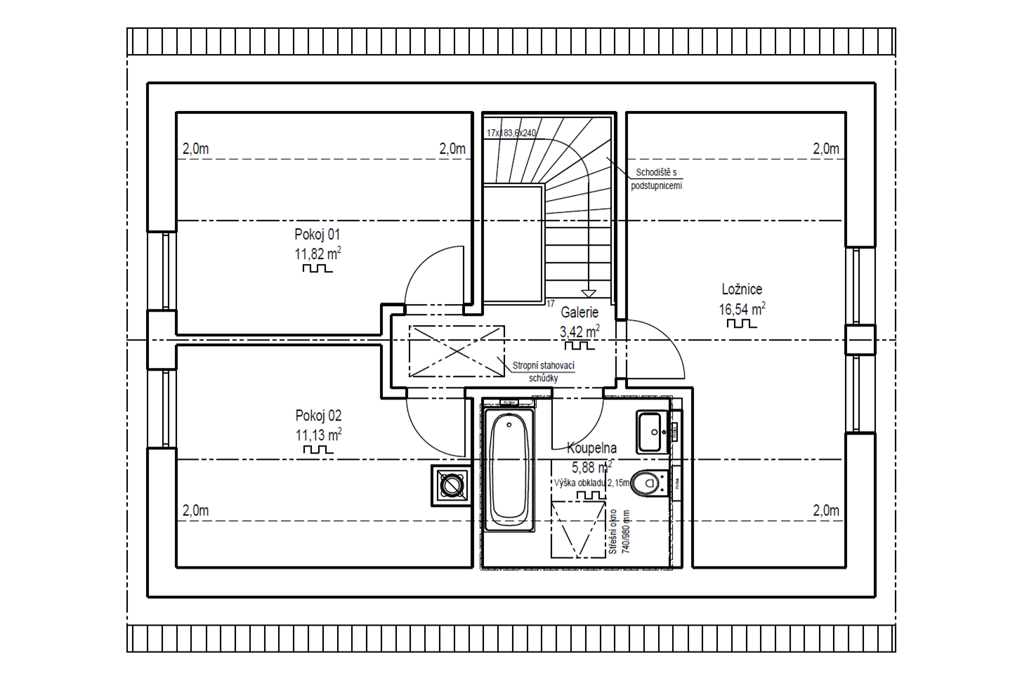
V Nové Vsi u Plzně stojí patrový rodinný dům postavený podle individuálního projektu. Přijďte si prohlédnout 103 m2 užitné plochy s pohodlnou dispozicí 5+kk, dvěma moderně zařízenými koupelnami a praktickou šatnou s oknem, která může být využita také jako pracovna nebo dílna.
Návštěva je možná každou středu od 8 do 14 hodin. Na jiném termínu prohlídky se s vámi rádi domluvíme na níže uvedených kontaktech.
tel.: +420 281 000 882
e-mail: Info@Haas-Fertigbau.cz
Adresa: Nová Ves (vedle č.p. 70), Plzeň-jih
GPS: 49.6858886N, 13.2940800E