Zpět na účelové stavby
Zpět na účelové stavby
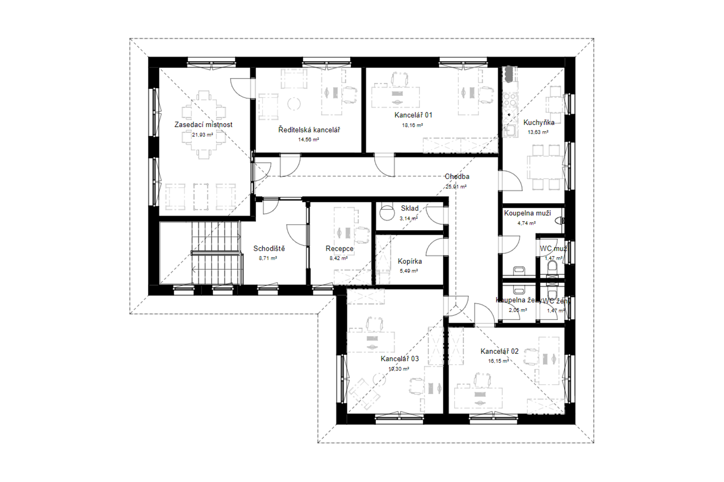
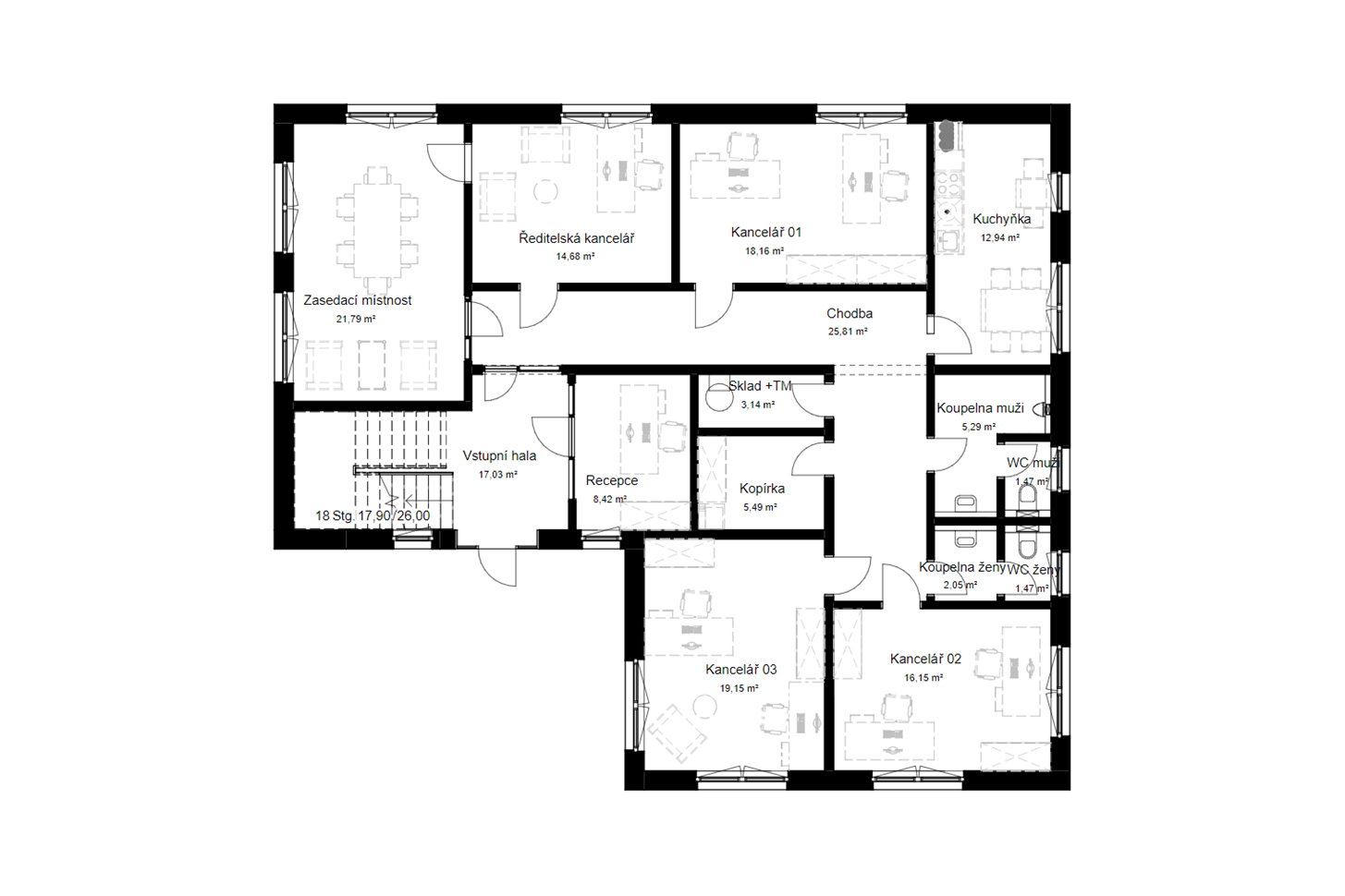
Ve dvoupodlažní administrativní budově najdete v každém patře 4 kanceláře pro 7 pracovníků, zasedací místnost, vstupní halu s recepcí za skleněnou příčkou, kuchyňku s jídelnou, sklad a další menší místnost například pro umístění kopírky. Oddělené toalety pro ženy a muže jsou samozřejmostí.
Výška stěn v obou podlažích je 2 980 mm. Objekt je vytápěn tepelným čerpadlem, napojeným na podlahové teplovodní topení. Použitá jsou plastohliníková okna s izolačním trojsklem.

| Počet podlaží | 2 NP |
| Vnější rozměr | 17,00 m x 14,65 m |
| Zastavěná plocha | 210,48 m2 |
| Celková užitná plocha | 338,17 m2 |
| Užitná plocha 1. NP | 173,04 m2 |
| Užitná plocha 2. NP | 165,13 m2 |
| Typ střechy | valbová, vazníková konstrukce, krytina Bramac |
| Sklon střechy | 25° |