
Den otevřených dveří 11.6.2022 - Nýrsko
Jeden z našich nejprodávanějších domů, bungalov Rapido 3-102, máte možnost nyní navštívit v Nýrsku na Klatovsku. Dřevostavba těsně před dokončením pro vás bude otevřená v sobotu 11. června od 10 do 14 hodin.
Jeden z našich nejprodávanějších domů, bungalov Rapido 3-102, máte možnost nyní navštívit v Nýrsku na Klatovsku. Dřevostavba těsně před dokončením pro vás bude otevřená v sobotu 11. června od 10 do 14 hodin.
Pokud se v sobotu do Nýrska vypravíte, jistě nebudete litovat. Prohlédnout si můžete naši práci hned na několika příkladech. Ve stejné lokalitě totiž stavíme ještě další tři domy: Rapido 2-81, individuální projekt bungalovu s terasou a Rapido 1-60. Ty pro vás sice nebudou otevřené, ale rozhodně stojí za to alespoň zvenku okouknout, jak stavby probíhají. V případě zájmu vám po domluvě obchodní zástupce může prohlídku kdykoliv zajistit.
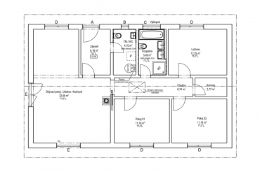
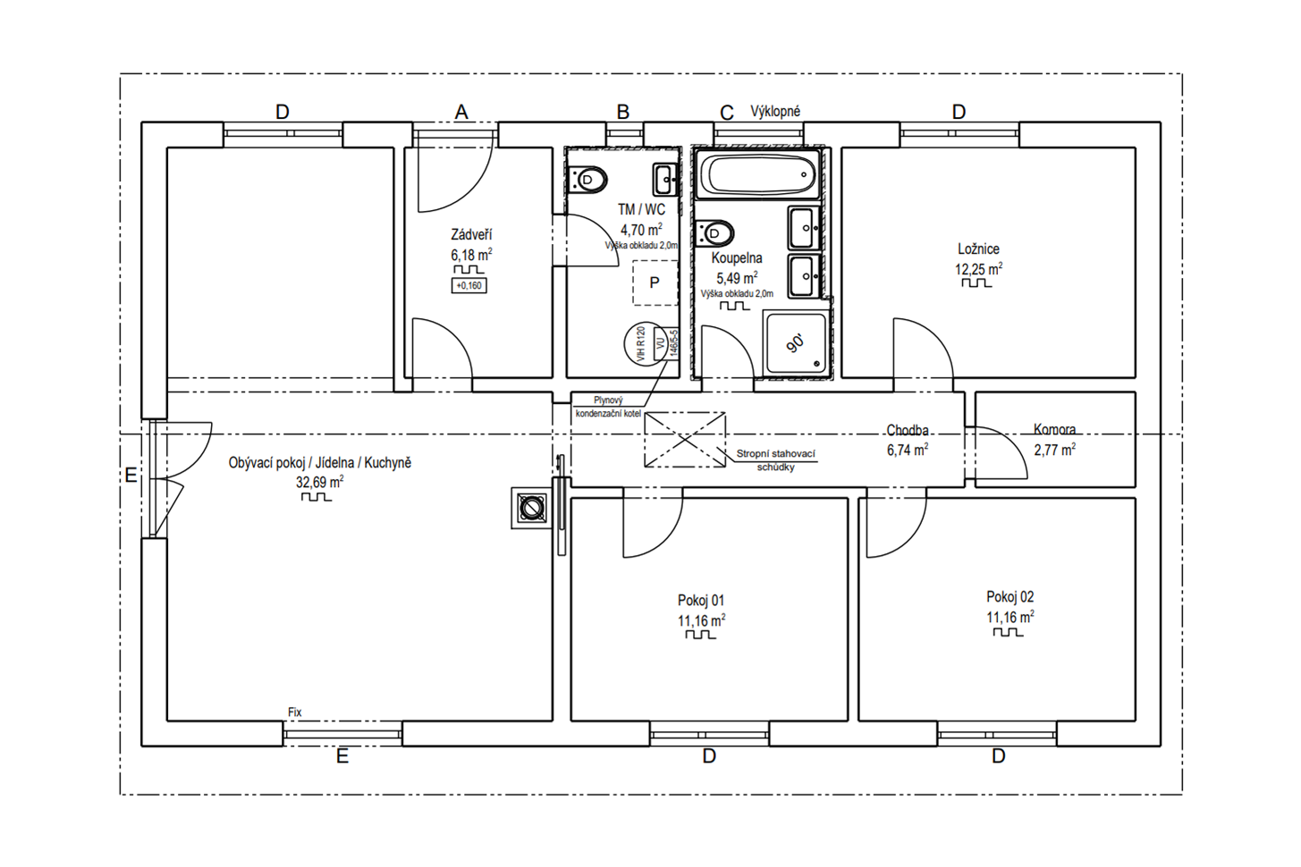
Že na pozemku v Nýrsku za fotbalovým hřištěm bude stát bungalov bylo jasné od začátku. Majitelé ale museli vybrat takový projekt, který by zapadl na jejich pozemek, a přitom vyhovoval veškerým jejich požadavkům. Přesně takový sice v našem katalogu typových domů nenašli, ale zaujal je rodinný dům Rapido 3-102 s dispozicí 4 + KK. Protože není problém jakýkoliv projekt upravit, přizpůsobili jsme půdorys domu jejich pozemku, který je užší a delší.
Zmenšené užitné ploše 93 m2 bylo potřeba přizpůsobit vnitřní uspořádání a také v ložnicích nahradit francouzská okna okny klasickými, aby byl prostor místností lépe využitelný. Přesto kromě 3 ložnic zbyl dostatek místa na prostorný obývací pokoj s kuchyňským koutem a jídelnou, koupelnu s vanou i sprchovým koutem, technickou místnost a komoru.
Věděli jste, že…?
…Standardně osazujeme do našich domů velká francouzská okna, ale i klasická okna jsou v porovnání se standardem průměrně o 14 % větší. Každý nový domov od Haas je proto nyní světlejší. Kromě toho je ale také větší, tišší, luxusnější, bytelnější, teplejší a úspornější. Zkrátka to je LEPŠÍ DOMOV!
Bungalov je standardně vytápěn podlahovým topením napojeným na tepelné čerpadlo. Nechybí ani komín k připojení krbu nebo krbových kamen. Zvenku zdobí fasádu odklad z hnědého umělého kamene a střecha v antracitové barvě.
Přijďte si prohlédnout prvotřídní dřevostavbu těsně před dokončením. Stavět jsme v Nýrsku začali po půlce března a hotový dům na klíč klientům předáme po půlce června. Hotové jsou veškeré výmalby, odklady, dlažby, zařizovací předměty v koupelnách a na WC. K dokončení zbývají pouze finální podlahové krytiny a osazení dveří včetně zárubní na které se vrhneme hned po skončení dne otevřených dveří.
Náš odborník bude připraven provést vás celým domem mezi 10 a 14 hodinou. Konkrétní čas prohlídky není nutné předem rezervovat, ale pokud chcete mít jistotu, že se bude věnovat pouze vám, je lepší předem kontaktovat přímo obchodního zástupce pana Petra Malce: telefonicky na čísle +420 603 261 340 nebo na e-mailu Petr.Malec2@Haas-Fertigbau.cz.
Těšíme se na vaši návštěvu!
Adresa: Za hřištěm, Nýrsko (zobrazit na mapě)
GPS: 49.2905967N, 13.1314872E
![]() |
Kontaktujte obchodního zástupce: |
![]() |
Typové provedení bungalovu Rapido 3-102 si prohlédněte ZDE. |
Od 1. srpna 2025 přichází v České republice zásadní změna: díky novele Z1 k požární normě ČSN 73 0802 bude možné projektovat a realizovat vícepatrové dřevostavby s výškou až 22,5 metru.
Pasivní dům na klíč od Haas Fertigbau je správnou volbou pro každého, kdo chce spojit úsporu, ekologii a pohodlný životní styl a navíc hledá zkušeného partnera, který se o vše postará od A do Z.
Toužíte po vlastním bydlení a hledáte pozemek na prodej v Chomutově? Nabízíme stavební pozemek s projektem domu Haas a vyřízeným stavebním povolením!