
DOD 23. 2. 2025 Nové Hutě - Prachatice
Nenechte si v neděli 23. 2. mezi 10. a 14. hodinou ujít prohlídku individuálně navrženého patrového domu, který jsme právě dokončili v Nových Hutích. Tento dům je ztělesněním mimořádného standardu Haas OPTIMO.
Nenechte si v neděli 23. 2. mezi 10. a 14. hodinou ujít prohlídku individuálně navrženého patrového domu, který jsme právě dokončili v Nových Hutích. Tento dům je ztělesněním mimořádného standardu Haas OPTIMO.
Vypravte se v neděli 23. 2. na Šumavu a přijďte si prohlédnout patrový dům, který splňuje přísné energetické standardy a využívá nejmodernější technologie. Dům je vybaven tepelným čerpadlem zn. Vaillant s podlahovým vytápěním a chlazením Rehau, nechybí komín s přípravou pro napojení krbu nebo elektrické venkovní stínění.
Tento individuálně navržený dům byl sice inspirovaný jiným projektem domu, ale na základě velmi jasné představy klientů se zcela přepracoval.
Dům poskytne díky promyšlenému vnitřnímu uspořádání spoustu prostoru pro společné chvíle i soukromí všem členů rodiny.
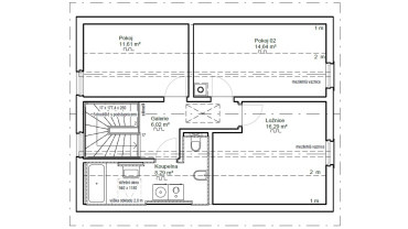
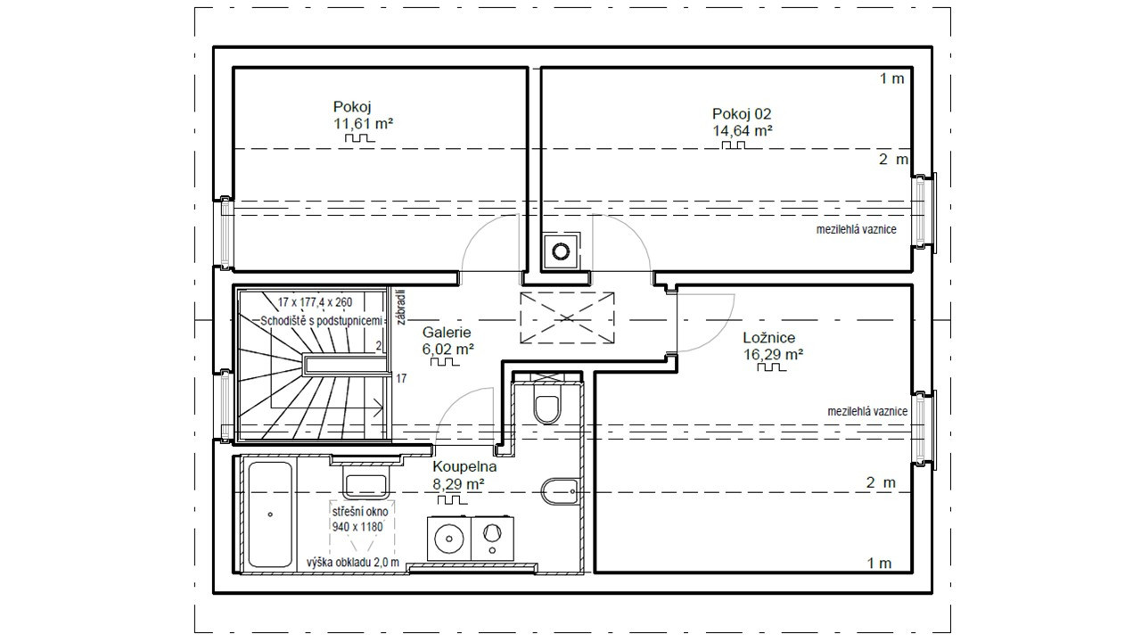
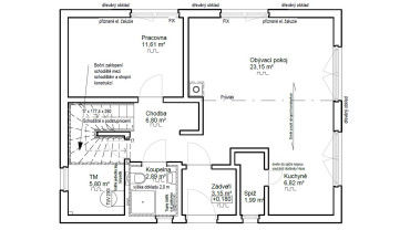
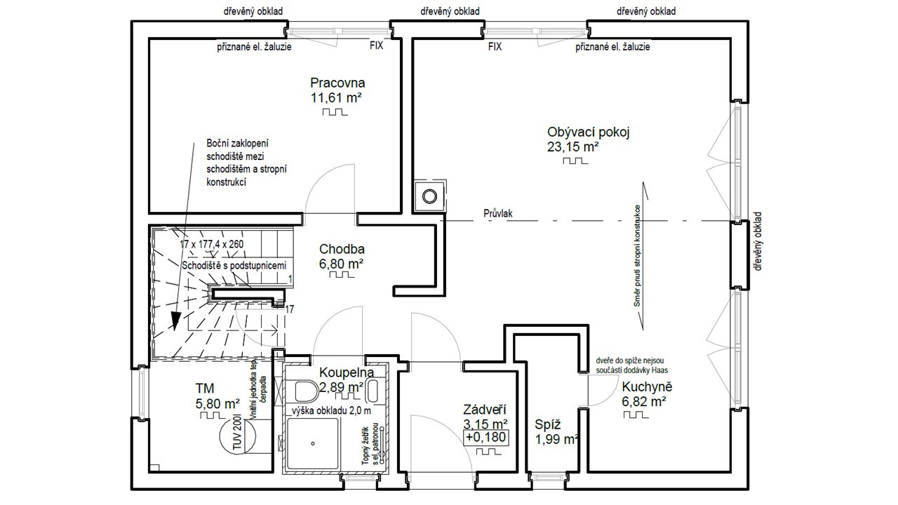
Na zastavěné ploše 76 m2 nabízí téměř 120 m2 užitné plochy – kuchyňský kout spojený s jídelnou a obývacím pokojem, čtyři další samostatné pokoje, dvě koupelny, technickou místnost a spíž na potraviny. Navíc samostatnou komoru pod schodištěm a pochozí půdu, třeba pro uložení sezónních věcí. Předem se počítalo s vestavěným nábytkem a z toho důvodu jsou v domě vytvořeny niky. Z hlavní obytné místnosti domu je velkorysým prosklením vstup na prosluněnou jižní terasu.
Na všechny zájemce o rodinné domy Haas se v neděli 23. 2. mezi 10. a 14. hodinou bude těšit náš obchodní zástupce Michal Záhora, který vás domem provede, seznámí s možnostmi stavby a všemi službami a novinkami, které jsme pro vás připravili.
Čas vaší prohlídky si zarezervujte na telefonu +420773266100 nebo e-mailu
Zároveň s registrací Vám bude zaslána přesná lokace domu.
Přijďte se podívat! Těšíme se na vás.
![]() |
Máte také zájem o individuální dům? |
Od 1. srpna 2025 přichází v České republice zásadní změna: díky novele Z1 k požární normě ČSN 73 0802 bude možné projektovat a realizovat vícepatrové dřevostavby s výškou až 22,5 metru.
Pasivní dům na klíč od Haas Fertigbau je správnou volbou pro každého, kdo chce spojit úsporu, ekologii a pohodlný životní styl a navíc hledá zkušeného partnera, který se o vše postará od A do Z.
Toužíte po vlastním bydlení a hledáte pozemek na prodej v Chomutově? Nabízíme stavební pozemek s projektem domu Haas a vyřízeným stavebním povolením!