Zpět na výpis článkůDen otevřených dveří 29.4.2023 - Brno
Jste příznivci moderních rodinných domů s čistou přímou linií? Pak by vám v sobotu 29. dubna neměla uniknout prohlídka exkluzivního bungalovu v Brně-Ivanovicích.
Zpět na výpis článkůJste příznivci moderních rodinných domů s čistou přímou linií? Pak by vám v sobotu 29. dubna neměla uniknout prohlídka exkluzivního bungalovu v Brně-Ivanovicích.
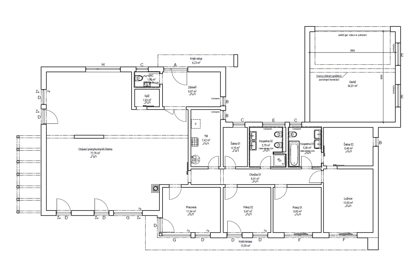
V luxusním přízemním rodinném domě s celkovou užitnou plochou přes 204 m2 najdete dispozici 5 + kk. K tomu 2 šatny, 2 koupelny, samostatnou toaletu, spižírnu, nezbytnou technickou místnost a prostornou garáž pro 2 auta.
Bungalov je velmi světlý díky zvětšení prosklených ploch a využití velkých HS portálů. Denní světlo do uzavřené chodby dodávají světlovody. Světlý a vzdušný prostor umocňují zvýšené stropy a především velkorysé plochy jednotlivých místností. Například ústřední obývací pokoj propojený s kuchyní a jídelnou nabízí úctyhodných 73 m2.
Vytápění rodinného domu je stejně jako ve všech rodinných domech Haas řešeno tepelným čerpadlem s podlahovým vytápěním, kterým lze i chladit. Do standardní výbavy patří také předokenní žaluzie na el. pohon a komín. Integrovaná krbová vložka je už ale nadstandardem, stejně jako elektronický zabezpečovací systém, který lze napojit na chytrou domácnost nebo příprava pro fotovoltaiku s bateriovým úložištěm.
Přijďte se přesvědčit na vlastní oči o možnostech dřevostaveb Haas. Rodinný dům v té nejvyšší kvalitě postavíme i těm nejnáročnějším z vás.
Tentokrát jsou v domě položené už i podlahy z krásného masivního dubu a instalovaná kuchyňská linka (oboje si dodali klienti sami). I kvůli tomu, je tentokrát NUTNÉ si čas své návštěvy předem rezervovat. Kontaktujte proto prosím našeho obchodního zástupce pana Jana Waloszka telefonicky na čísle +420 602 247 599 nebo na e-mailu Jan.Waloszek@Haas-Fertigbau.cz. Na místě budeme mezi 10 a 14 hodinou.
Kromě Lepšího standardu, v jehož rámci získáte nejen tepelné čerpadlo s podlahovým topením, ale v ceně domu navíc i centrální rekuperaci vzduchu, venkovní žaluzie nebo rolety do celého domu a mnoho dalšího, můžete od Haas Fertigbau očekávat i Lepší služby, které vám usnadní pořízení nového domu. Navíc se u nás můžete spolehnout na transparentní financování, kdy vám díky úzké spolupráci s bankami pomůžeme zajistit ve zjednodušeném procesu velmi výhodný hypoteční úvěr s bezkonkurenčními podmínkami - nyní navíc i se speciální akcí Nová dotovaná hypotéka 1,99 % p. a.
Těšíme se na vaši návštěvu!
Adresa: Na Rybízárně (vedle č.p. 41), Brno-Ivanovice (zobrazit na mapě)
GPS: 49.2687853N, 16.5639003E
|
Kontaktujte obchodního zástupce: |
|
Máte také zájem o individuální dům? |

Od 1. srpna 2025 přichází v České republice zásadní změna: díky novele Z1 k požární normě ČSN 73 0802 bude možné projektovat a realizovat vícepatrové dřevostavby s výškou až 22,5 metru.
Pasivní dům na klíč od Haas Fertigbau je správnou volbou pro každého, kdo chce spojit úsporu, ekologii a pohodlný životní styl a navíc hledá zkušeného partnera, který se o vše postará od A do Z.
Toužíte po vlastním bydlení a hledáte pozemek na prodej v Chomutově? Nabízíme stavební pozemek s projektem domu Haas a vyřízeným stavebním povolením!