Zpět na výpis článkůDen otevřených dveří 18.2.2023 - Řehořov
V sobotu 18. února pro vás pořádáme den otevřených dveří v Řehořově na Vysočině. Od 10 do 14 hodin vás provedeme bungalovem podle individuálního projektu.
Zpět na výpis článkůV sobotu 18. února pro vás pořádáme den otevřených dveří v Řehořově na Vysočině. Od 10 do 14 hodin vás provedeme bungalovem podle individuálního projektu.
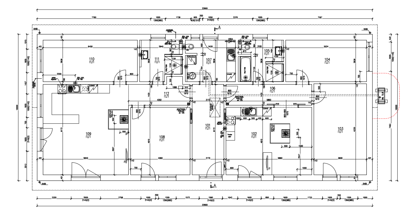
Individuální bungalov jsme začali stavět koncem října loňského roku a nyní je už téměř připravený k nastěhování. Majitelé si přáli mít dvougenerační dům, ve kterém budou mít obě generace naprosté soukromí. Dvě bytové jednotky o dispozici 3 + kk mají společný vchod, jinak jsou zcela nezávislé. Celková užitná plocha bungalovu je úctyhodných 191 m².
Rádi vám řekneme veškeré informace k naší Dotované hypotéce 1,99 % p. a., o nových službách, které vám usnadní pořízení vašeho domu, a o novém standardu Haas, v jehož rámci získáte v ceně domu navíc i centrální rekuperaci vzduchu, venkovní žaluzie nebo rolety do celého domu a nátěr speciální barvou, která odbourává škodliviny a eliminuje pachy.
V sobotu 18. února mezi 10. a 14. hodinou se na vás bude těšit náš obchodní zástupce. Čas prohlídky není nutné předem rezervovat, ale pokud chcete mít jistotu, že budeme mít čas věnovat se pouze vám, je lepší předem kontaktovat přímo obchodního zástupce Jana Waloszka, telefonicky na čísle: +420 602 247 599 nebo e-mailem: Jan.Waloszek@Haas-Fertigbau.cz.
Těšíme se na vaši návštěvu!
Adresa: Řehořov 66, Řehořov (zobrazit na mapě)
GPS: 49.3959214N, 15.7867272E
|
Kontaktujte obchodního zástupce: |
|
Máte také zájem o individuální dům? |

Od 1. srpna 2025 přichází v České republice zásadní změna: díky novele Z1 k požární normě ČSN 73 0802 bude možné projektovat a realizovat vícepatrové dřevostavby s výškou až 22,5 metru.
Pasivní dům na klíč od Haas Fertigbau je správnou volbou pro každého, kdo chce spojit úsporu, ekologii a pohodlný životní styl a navíc hledá zkušeného partnera, který se o vše postará od A do Z.
Toužíte po vlastním bydlení a hledáte pozemek na prodej v Chomutově? Nabízíme stavební pozemek s projektem domu Haas a vyřízeným stavebním povolením!