Zpět na výpis článkůDen otevřených dveří 17.6.2023 - Plzeň-jih
Za dalším dnem otevřených dveří zamiřte do Nové Vsi u Plzně. V sobotu 17. června vám předvedeme patrový rodinný dům s užitnou plochou 103 m2.
Zpět na výpis článkůZa dalším dnem otevřených dveří zamiřte do Nové Vsi u Plzně. V sobotu 17. června vám předvedeme patrový rodinný dům s užitnou plochou 103 m2.
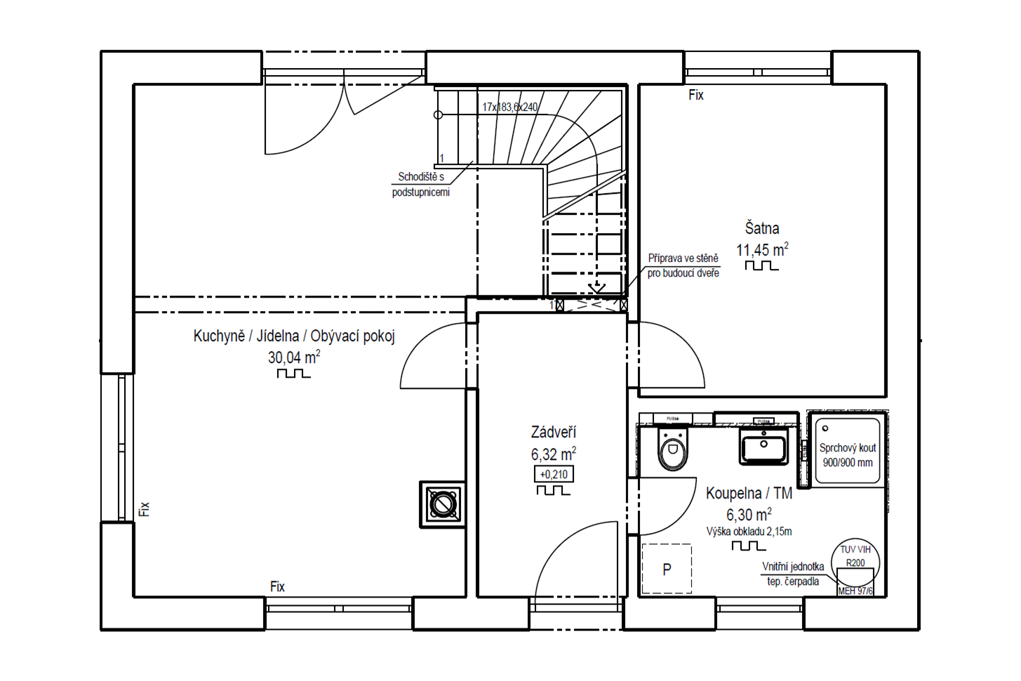
V obci Nová Ves, kousíček od Plzně právě dokončujeme patrový rodinný dům. Inspirací pro individuální projekt byl typový dům Festivo 3-105. Pokud Vás zajímá, jak vypadá standardní rodinný dům Haas ve stupni dokončení COMPLETE (tedy na klíč), zhruba týden před předáním, máte jedinečnou příležitost domluvit si prohlídku právě v Nové Vsi.
Na zastavěné ploše 70 m2, na Plzeňsku vyrostl dům s dispozicí 4 + KK s šatnou a dvěma koupelnami. Dostatečně prostorná šatna s oknem může sloužit i jako pracovna nebo dílna. Vytápění tepelným čerpadlem napojeným na teplovodní podlahové topení je standardní součástí výbavy všech rodinných domů Haas.
Kromě Lepšího standardu, v jehož rámci získáte nejen tepelné čerpadlo s podlahovým topením, ale v ceně domu navíc i centrální rekuperaci vzduchu, venkovní žaluzie nebo rolety do celého domu a mnoho dalšího. Od Haas Fertigbau můžete ale očekávat i Lepší služby, které vám usnadní pořízení nového domu nebo transparentní financování, kdy vám díky úzké spolupráci s bankami pomůžeme zajistit ve zjednodušeném procesu velmi výhodný hypoteční úvěr s bezkonkurenčními podmínkami - nyní navíc i se speciální akcí Nová dotovaná hypotéka 1,99 % p. a.
Na všechny zájemce o rodinné domy Haas se budeme těšit v sobotu 17. 6. 2023 mezi 10. a 14. hodinou. Tentokrát je potřeba, abyste si v případě zájmu o prohlídku předem domluvili čas své návštěvy. Vy aspoň budete mít jistotu, že budeme mít čas věnovat se pouze vám. Kontaktuje proto prosím přímo obchodního zástupce pana Petra Malce (který bude přítomen na místě) telefonicky na čísle +420 603 261 340 nebo na e-mailu Petr.Malec2@Haas-Fertigbau.cz.
Těšíme se na vaši návštěvu!
Adresa: Nová Ves (vedle č.p. 70), Plzeň-jih (zobrazit na mapě)
GPS: 49.6858886N, 13.2940800E
|
Kontaktujte obchodního zástupce: |
|
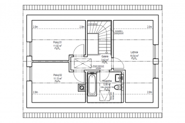
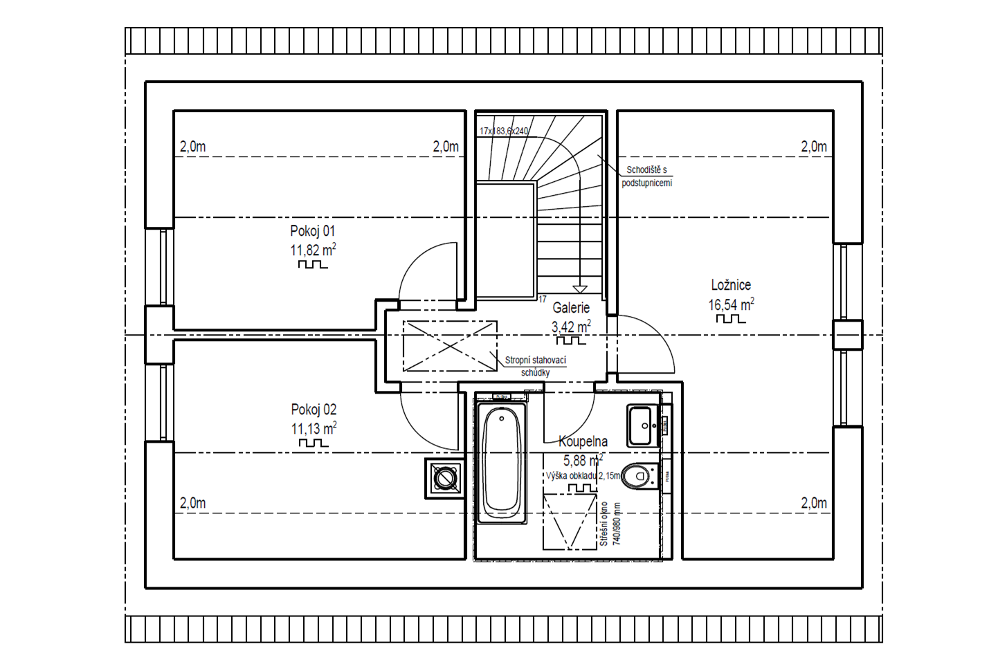
Typové provedení rodinného domu Festivo 3-105 si prohlédněte ZDE. |

Od 1. srpna 2025 přichází v České republice zásadní změna: díky novele Z1 k požární normě ČSN 73 0802 bude možné projektovat a realizovat vícepatrové dřevostavby s výškou až 22,5 metru.
Pasivní dům na klíč od Haas Fertigbau je správnou volbou pro každého, kdo chce spojit úsporu, ekologii a pohodlný životní styl a navíc hledá zkušeného partnera, který se o vše postará od A do Z.
Toužíte po vlastním bydlení a hledáte pozemek na prodej v Chomutově? Nabízíme stavební pozemek s projektem domu Haas a vyřízeným stavebním povolením!