Pomáháme svým klientům navrhnout vysněný domov do všech detailů, díky nimž si v něm užijí každý den.

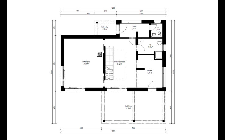
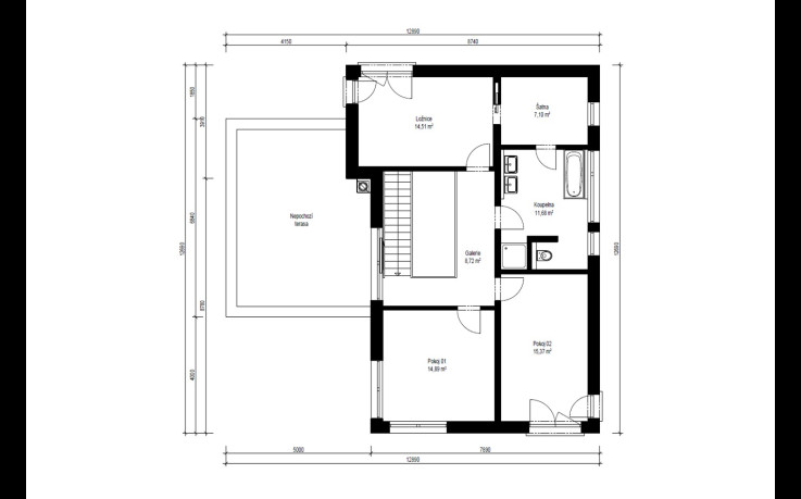
Prakticky celé přízemí patrového domu Vita 3-151 zabírá obrovský společný obývací prostor s jídelnou a kuchyní, odkuj je navíc přímý vstup na krytou terasu, která celý prostor ještě více rozšiřuje. Z galerie v patře pak vstoupíte do 3 pokojů a koupelny, která je přes šatnu navíc propojena s jednou z ložnic.
| tepelná ztráta domu* | spotřeba energie pro vytápění | náklady na vytápění* - tepelné čerpadlo (standard) |
| 6.444 W | 16,4 MWh/rok | 15.728 Kč/rok |
Kompletně pro vás vyřídíme ZVÝHODNĚNÉ financování nového domu.