Pomáháme svým klientům navrhnout vysněný domov do všech detailů, díky nimž si v něm užijí každý den.

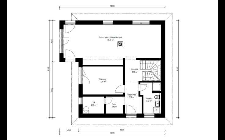
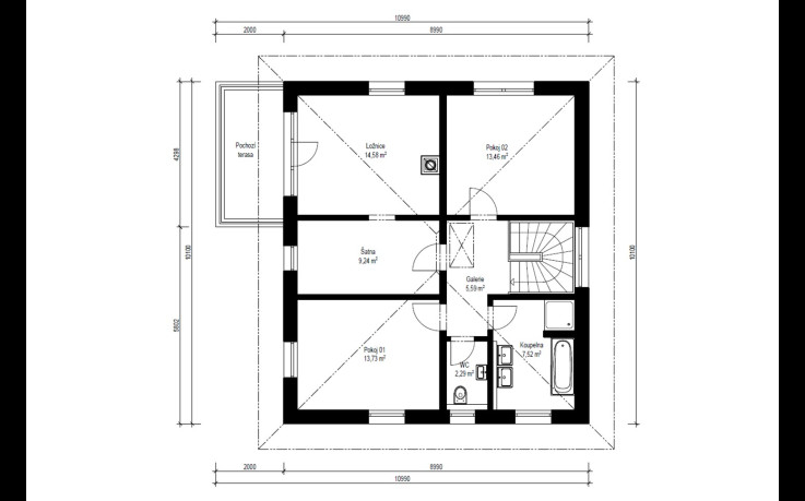
Rodinný dům Vita 2-145 je zástupcem rodiny městských vil. V půdorysu přízemí se nachází veliký obývací pokoj s kuchyňským koutem a jídelnou, pracovna, šatna, koupelna a technická místnost. V patře pak tři ložnice, šatna, koupelna a samostatné WC. Z jedné ložnice je navíc vstup na terasu.
| tepelná ztráta domu* | spotřeba energie pro vytápění | náklady na vytápění* - tepelné čerpadlo (standard) |
| 5.561 W | 14,2 MWh/rok | 13.618 Kč/rok |
Kompletně pro vás vyřídíme ZVÝHODNĚNÉ financování nového domu.