Pomáháme svým klientům navrhnout vysněný domov do všech detailů, díky nimž si v něm užijí každý den.

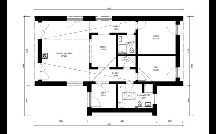
Jednopodlažní rodinný dům Scandic 1-93 je nejmenším z naší řady bungalovů skandinávského stylu. Ústřední prostor domu zabírá obývací pokoj s vestavěnou kuchyní. Za ní se skrývá spižírna a koupelna. Zadní trakt hlavní lodi tvoří 2 ložnice. Z boku přiléhá ještě koupelna a šikovné zádveří u vstupu do domu.
| tepelná ztráta domu* | spotřeba energie pro vytápění | náklady na vytápění* - tepelné čerpadlo (standard) |
| 4.606 W | 11,1 MWh/rok | 10.645 Kč/rok |
Kompletně pro vás vyřídíme ZVÝHODNĚNÉ financování nového domu.