Pomáháme svým klientům navrhnout vysněný domov do všech detailů, díky nimž si v něm užijí každý den.

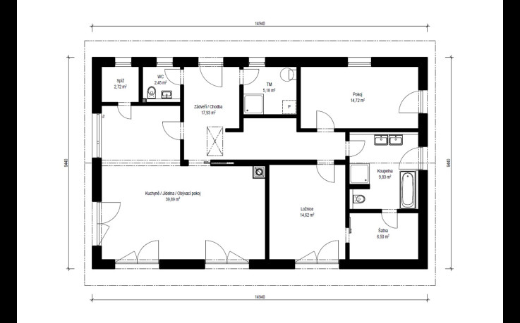
Světlý a vzdušný bungalov Rapido 4-114, díky velkým francouzským oknům maže hranice mezi interiérem a exteriérem. Na užitné ploše 114 m2 jsme navrhli pouze 2 prostorné ložnice, opravdu veliký obývací pokoj s kuchyní a jídelnou. Půdorys je doplněn úložnými prostory spíže, šatny, koupelnou, samostatným WC a technickou místností se sprchovým koutem.
| tepelná ztráta domu* | spotřeba energie pro vytápění | náklady na vytápění* - tepelné čerpadlo (standard) |
| 4.454 W | 8,9 MWh/rok | 8.535 Kč/rok |
Kompletně pro vás vyřídíme ZVÝHODNĚNÉ financování nového domu.