Pomáháme svým klientům navrhnout vysněný domov do všech detailů, díky nimž si v něm užijí každý den.

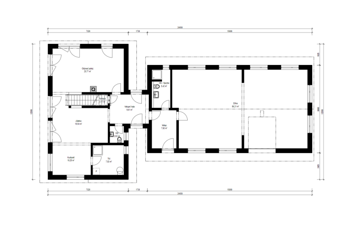
Součástí patrového rodinného domu s dispozicí 4 + 1 je prostorná dílna pro podnikání. Soukromá část nabízí na užitné ploše 143 m2 velký obývací pokoj s oddělenou jídelnou a kuchyní, tři ložnice, koupelnu, šatnu, samostatné WC a technickou místnost. V dílně se samostatným vstupem je na užitné ploše 100 m2 vstupní hala a oddělené sociální zařízení se sprchovým koutem. Do rozlehlé dílny, která může sloužit k různým typům podnikání, je umožněn vjezd garážovými vraty.
Obytná část domu i dílna jsou kryté sedlovou střechou, nad propojovací halou je plochá střecha. Fasáda kombinuje klasickou omítku s dřevěným obkladem. Podlahové vytápění obytné části i radiátory v dílně jsou napojené na tepelné čerpadlo.
Kompletně pro vás vyřídíme ZVÝHODNĚNÉ financování nového domu.