Pomáháme svým klientům navrhnout vysněný domov do všech detailů, díky nimž si v něm užijí každý den.

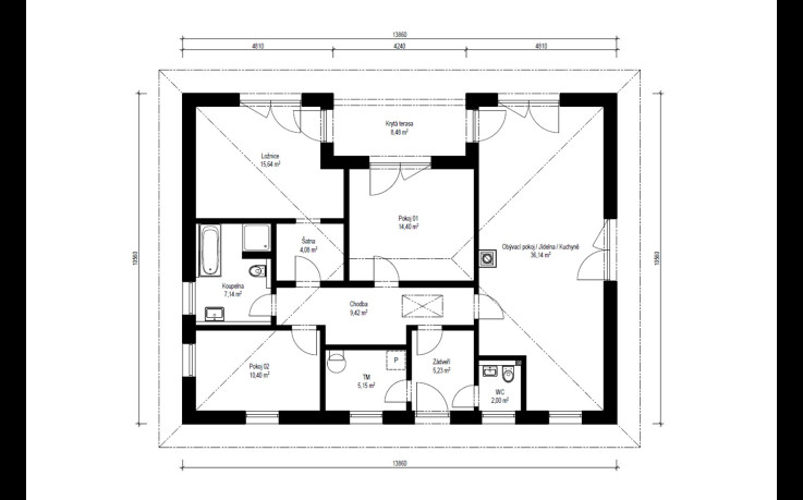
Bungalov Lucky 2-110 má užitnou plochu 110 m2, která v sobě skrývá šikovně řešené členění na 3 ložnice, koupelnu s WC, samostatné WC, šatnu, technickou místnost a prostorný obývací pokoj s kuchyňským koutem, vyústěným v polozakrytou venkovní terasu.
| tepelná ztráta domu* | spotřeba energie pro vytápění | náklady na vytápění* - tepelné čerpadlo (standard) |
| 4.479 W | 10,8 MWh/rok | 10.357 Kč/rok |
* Podmínky pro výpočet tepelných ztrát a nákladů
Kompletně pro vás vyřídíme ZVÝHODNĚNÉ financování nového domu.