Pomáháme svým klientům navrhnout vysněný domov do všech detailů, díky nimž si v něm užijí každý den.

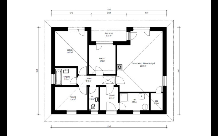
V bungalovu Lucky 1-84 je prostor o rozloze přes 83 m2 šikovně rozčleněn do tří ložnic, koupelny, WC, skladu a obývacího pokoje s kuchyní. Prostorná terasa prosvětlující obývací prostor je částečně zapuštěna do střední části domu, kterému tím dává tvar písmene "U".
| tepelná ztráta domu* | spotřeba energie pro vytápění | náklady na vytápění* - tepelné čerpadlo (standard) |
| 3.324 W | 7,9 MWh/rok | 7.576 Kč/rok |
* Podmínky pro výpočet tepelných ztrát a nákladů
Kompletně pro vás vyřídíme ZVÝHODNĚNÉ financování nového domu.