Pomáháme svým klientům navrhnout vysněný domov do všech detailů, díky nimž si v něm užijí každý den.

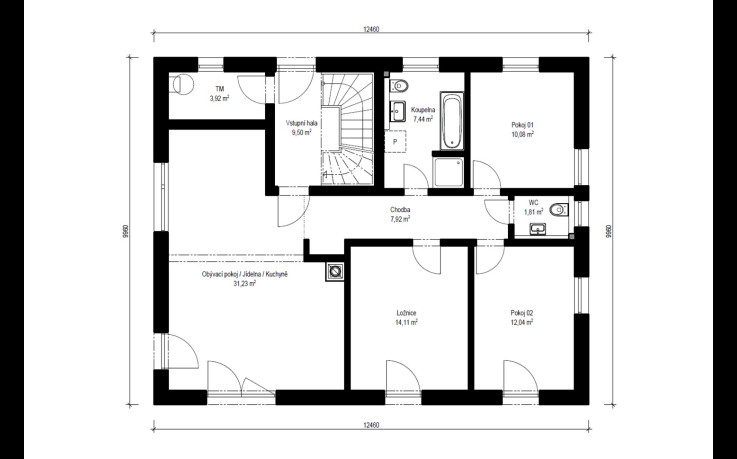
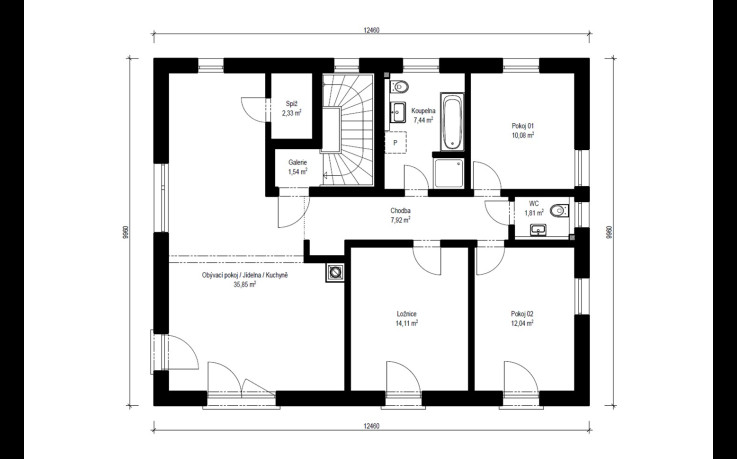
Dva samostatné byty, jeden v přízemí a druhý v patře domu nabízí vila Genera 3-191. Každý byt má dispozici 4 + KK, kterou v přízemí doplňuje technická místnost, koupelna a samostatné WC. V patře je místo technické místnosti zvětšený kuchyňský kout s přibyla spíž.
| tepelná ztráta domu* | spotřeba energie pro vytápění | náklady na vytápění* - tepelné čerpadlo (standard) |
| 6.809 W | 16,3 MWh/rok | 15.632 Kč/rok |
Kompletně pro vás vyřídíme ZVÝHODNĚNÉ financování nového domu.