Pomáháme svým klientům navrhnout vysněný domov do všech detailů, díky nimž si v něm užijí každý den.

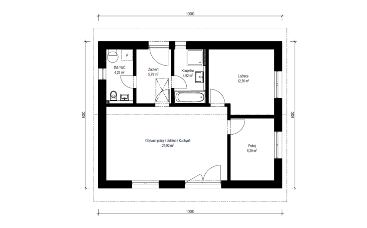
Bungalov Gala zajistí pohodlné bydlení pro menší rodinu. Rodinnému domu stačí pouhých 80 m2 zastavěné plochy. Přesto nabízí pohodlnou dispozici 3 + KK na užitné ploše téměř 63 m2. Obývací pokoj s kuchyňským koutem a ložnici doplňuje další menší pokoj, využitelný jako pokojíček pro dítě nebo pracovna.
| tepelná ztráta domu* | spotřeba energie pro vytápění | náklady na vytápění tepelné čerpadlo* (nadstandard) | náklady na vytápění kondenzační plynový kotel (standard) |
| 2.581 W | 5,2 MWh/rok | 4.987 Kč/rok | 9.194 Kč/rok |
Kompletně pro vás vyřídíme ZVÝHODNĚNÉ financování nového domu.