Pomáháme svým klientům navrhnout vysněný domov do všech detailů, díky nimž si v něm užijí každý den.

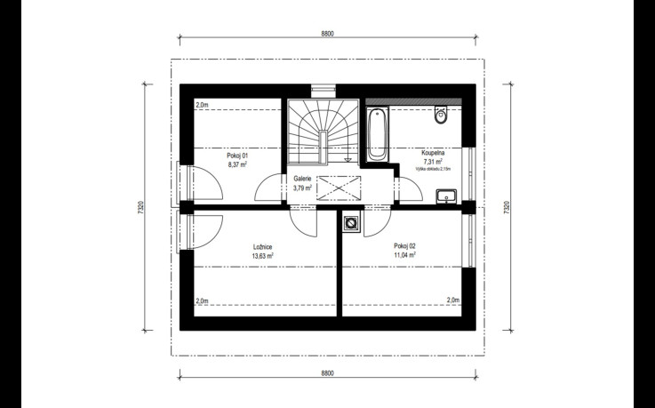
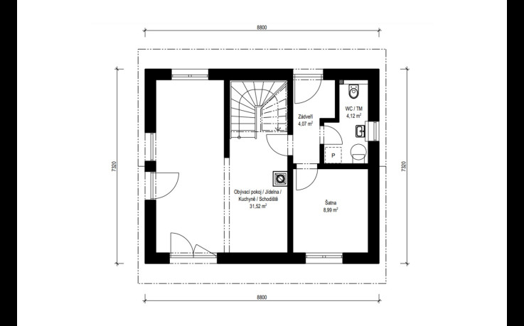
V patrové dřevostavbě Festivo 2-94 najdete na užitné ploše 94 m2 dispozici 4 + KK. V přízemí je velký otevřený obývací prostor s kuchyňským koutem, prostorná šatna a technická místnost. V patře pak tři ložnice a koupelna. Přesto, že se jedná o celkově menší dům, svůj kout a pohodlí si v něm najde každý člen rodiny.
| tepelná ztráta domu* | spotřeba energie pro vytápění | náklady na vytápění* - tepelné čerpadlo (standard) |
| 3.619 W | 7,2 MWh/rok | 6.905 Kč/rok |
* Podmínky pro výpočet tepelných ztrát a nákladů
Kompletně pro vás vyřídíme ZVÝHODNĚNÉ financování nového domu.