Festivo 1-84

CENA OD: 2 507 100 Kč vč DPH

Užitná plocha
celkem

83.6

Počet
místností

4+KK
Sedlová

Hlavní přednosti domu

  • malá zastavěná plocha
  • šikovně řešený půdorys
  • kamenný obklad fasády

Technická data

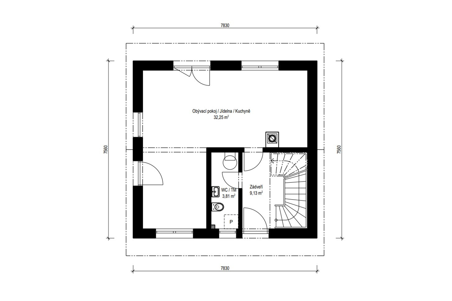
  • Vnější rozměry: 7,83 x 7,56 m
  • Užitná plocha celkem: 83.6 m²
  • Zastavěná plocha: 59.19 m²
  • Užitná plocha podkroví: 38.41 m²
  • Užitná plocha přízemí: 45.19 m²
  • Sklon střechy: 30º
aEnergetická kategorie A
bEnergetická kategorie B

Patrový rodinný dům Festivo 1-84 zabírá zastavěnou plochu pouhých 59 m2. Přesto nabídne užitnou plochu téměř 84 m2, dispozici 4+KK se třemi ložnicemi a koupelnou v patře a obývacím pokojem s kuchyňským koutem v přízemí, kde je ještě místo pro technickou místností s WC.

tepelná ztráta domu* spotřeba energie pro vytápění náklady na vytápění* - tepelné čerpadlo (standard)
3.418 W 6,8 MWh/rok 6.521 Kč/rok 

* Podmínky pro výpočet tepelných ztrát a nákladů

Další domy z řady FESTIVO

Další domy HAAS

 
* Položky označené hvězdičkou jsou povinné