Pomáháme svým klientům navrhnout vysněný domov do všech detailů, díky nimž si v něm užijí každý den.

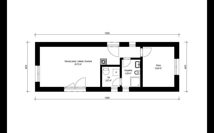
Easy 3-43 je další z bungalovů, určený především k víkendovému bydlení. Přesto skrývá veškeré výhody domů Haas, včetně energeticky úsporných obvodových stěn Thermo-Protect® 40. Půdorys tvoří pohodlný obývací pokoj s kuchyňským koutem, ložnice, koupelna a samostatná technická místnost.
| tepelná ztráta domu* | spotřeba energie pro vytápění | náklady na vytápění* - tepelné čerpadlo (standard) |
| 2.009 W | 4,8 MWh/rok | 4.603 Kč/rok |
Kompletně pro vás vyřídíme ZVÝHODNĚNÉ financování nového domu.