Pomáháme svým klientům navrhnout vysněný domov do všech detailů, díky nimž si v něm užijí každý den.

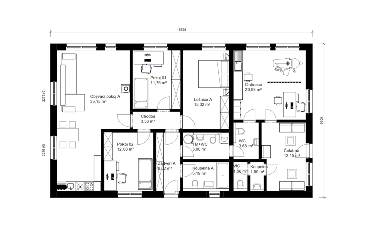
Plnohodnotný rodinný dům pro čtyřčlennou rodinou s oddělenou částí pro podnikání. V soukromé části najdete na užitné ploše 94,06 m2 obývací pokoj s kuchyní a jídelnou, ložnici, dva dětské pokoje, koupelnu a technickou místnost. Provozovna ordinace nabízí na celkové užitné ploše 40,24 m2 čekárnu a ordinaci se samostatným WC. K tomu oddělenou umývárnu a WC. Obě části domu mají samostatný vchod, ale zároveň je možné projít přes technickou místnost přímo do provozovny.
Exteriér lze zvolit ve dvou variantách. V jedné variantě můžete zvolit dřevěný obklad štítových stěna a části s provozovnu. Zbytek okapových stěn je oplechován falcovaným plechem k tomu krásně ladí moderní falcovaná plechová střecha. Součástí této varianty jsou kvalitní plastohliníková okna s izolačním trojsklem. Druhá varianta nabízí klasický vzhled s jednobarevnou fasádou a střechou s betonovými střešními taškami a bezúdržbovými plastovými okny s izolačním trojsklem.
Kompletně pro vás vyřídíme ZVÝHODNĚNÉ financování nového domu.